44, Westolivia, Patterson, Vaughan, Residential Freehold
- 4 beds |
- 4 baths |
- 1500-2000 SQFT

Description
Residential Freehold Semi-Detached For Sale.
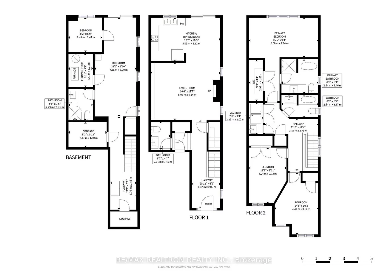
Prepare to be impressed when you step inside this Gorgeous Thornhill Woods semi-detached family home boasting nearly 1,700sqft + finished walk-out basement! Featuring excellent curb appeal with landscaped & partially interlocked driveway with no sidewalk | Entertainers Open concept floor plan with 9ft ceiling on main & hardwood floors through out | Dining Room combined with spacious eat-in kitchen walks out to 2nd floor deck featuring top-notch stainless steel Café oven & fridge, Bosch dishwasher | Large living room with built-in storage, gas fireplace, and pot lights | Main floor direct garage entry | Second floor offering 3 spacious bedrooms (Primary with 4pc ensuite), convenient 2nd floor laundry | Fully finished walk-out basement with nanny suite / in-law suite potential gives you a 4th bedroom or home office boasting large above grade window, Cold Room, 3pc bathroom with glass standing shower, and large recreational area that walks out to fenced backyard | Plenty of storage | Easy rear staircase access to both levels | Freshly painted (2026), New roof (2025), New Furnace (2025) | Nestled in one of Vaughan's most sought after communities with short walking distance to public transportation, top-rated schools, shuls, grocery, shopping & so much more. ** See 3D virtual Tour & Video **
Property Features: Fenced Yard, Park, Place Of Worship, Public Transit, Rec./Commun.Centre, School
Interior Features: Auto Garage Door Remote, In-Law Capability, Carpet Free
Cross Street: Dufferin & Autumn Hill
Direction Faces: East
Key Facts
- Days on: 0 days
- Mls Status: Price Change
- Bedrooms Total: 4
- Bedrooms Below Grade: 1
- Bedrooms Above Grade: 3
- Bathrooms Total Integer: 4
- Lot Width: 22.51
- Kitchens Total: 1
- Parking Total: 4
- Parking Spaces: 3
- Parking Features: Private
- Garage Type: Built-In
- Heat Source: Gas
- Heat Type: Forced Air
- Cooling: Central Air
- Living Area Range: 1500-2000 Square Feet
Location 44, Westolivia, Patterson, Vaughan
Search by Neighbourhoods

























