100, Promenade, Brownridge, Vaughan, Residential Condo & Other
- 2 beds |
- 1 baths |
- 700-799 SQFT

Description
Residential Condo & Other Condo Apartment For Sale.
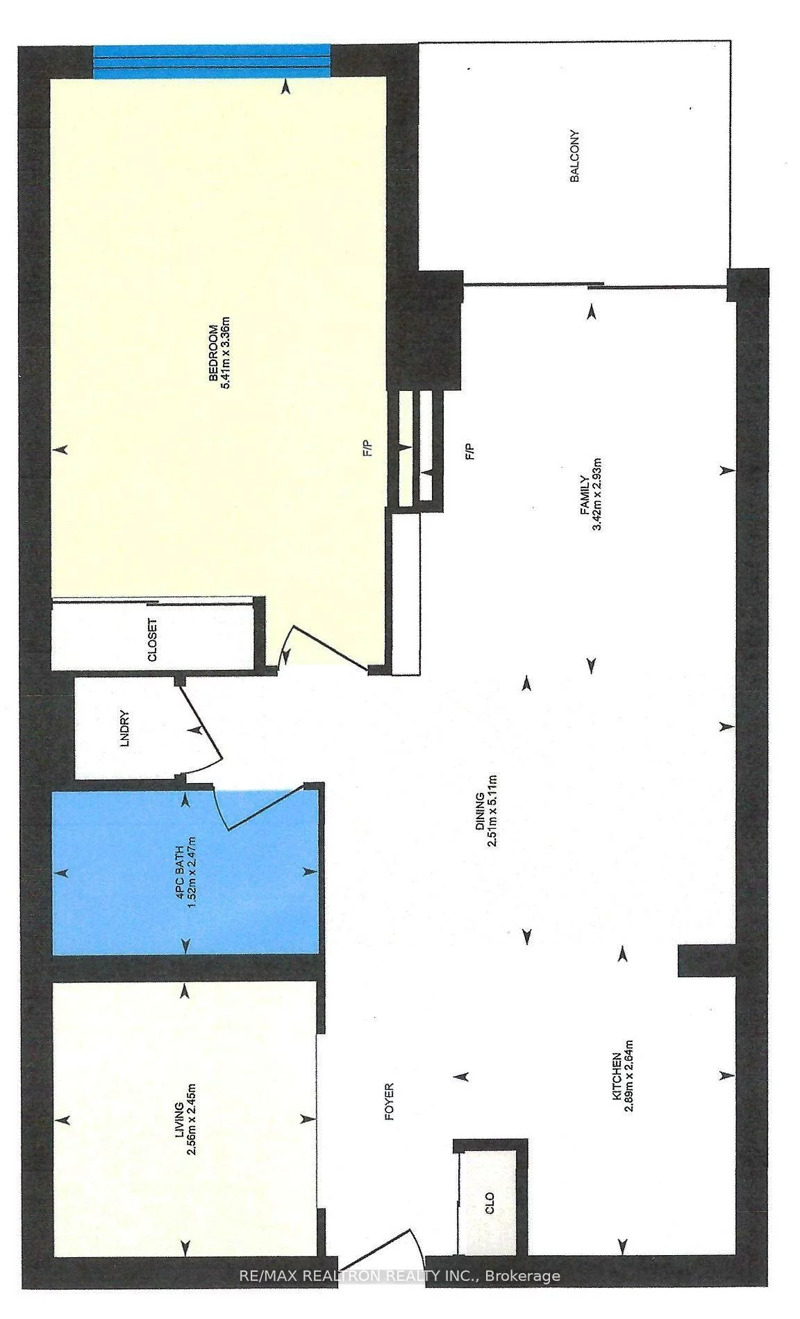
Welcome to this bright 1-bedroom plus den condo perfectly located in one of Thornhill's most sought-after communities and buildings. This thoughtfully designed suite features an open-concept layout with large floor to ceiling windows windows and wonderfulfinishes.The kitchen offers stainless steel appliances, granite countertops, and ample storage, ideal for cooking or entertaining. The versatile den provides the perfect space for a home office, guest room, or reading nook. The primary bedroom is complete with a large double closet and plenty of natural light. Enjoy your private balcony with beautiful views, in-suite laundry, and premium building amenities including a fitness centre, party room, 24-hour concierge, and visitor parking.Located just steps to shopping, restaurants, parks, and transit - with easy access to highways 407 and 7 - this condo combines convenience and comfort living in one exceptional package. Perfect for first-time buyers,professionals, or investors alike.
Laundry Features: Ensuite
Interior Features: Other
Cross Street: Bathurst / Centre
Key Facts
- Days on: 0 days
- Mls Status: New
- Bedrooms Total: 2
- Bedrooms Below Grade: 1
- Bedrooms Above Grade: 1
- Bathrooms Total Integer: 1
- Locker: Owned
- Kitchens Total: 1
- Parking Total: 1
- Parking Spaces: 1
- Parking Features: Underground
- Garage Type: Underground
- Heat Source: Gas
- Heat Type: Forced Air
- Cooling: Central Air
- Living Area Range: 700-799 Square Feet
Location 100, Promenade, Brownridge, Vaughan
Search by Neighbourhoods













