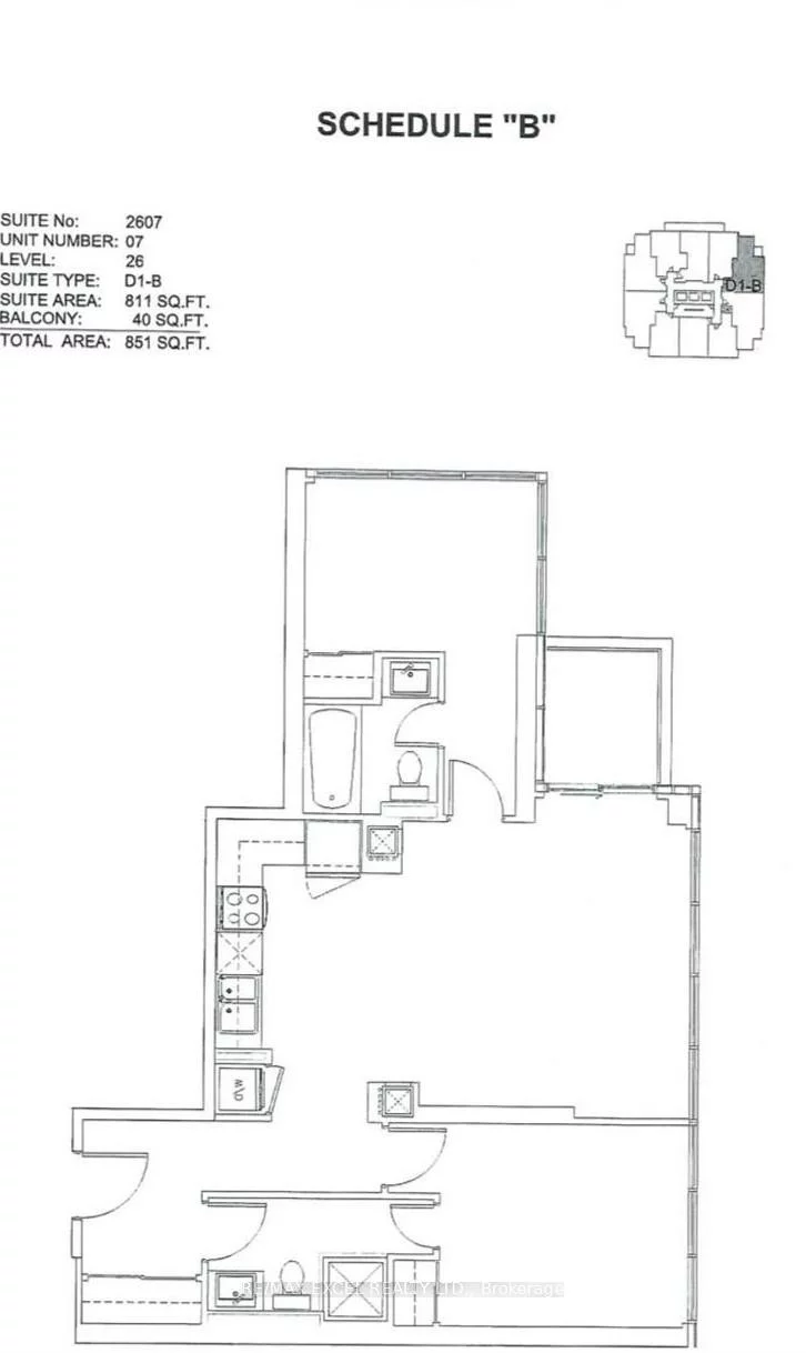
2908, Highway 7, Concord, Vaughan, Residential Condo & Other
- 2 beds |
- 2 baths |
- 800-899 SQFT

Description
Residential Condo & Other Condo Apartment For Sale.
Beautiful 2 Bedrooms, 2 Washrooms Condo located in the heart of the City of Vaughan next to the Vaughan Metropolitan Centre and Subway. Gorgeous Upgraded Kitchen W/Quartz Countertop, Backsplash, Ensuite Laundry, Large Living & Dining, Harwood Floors, Floor To Ceiling Windows, 9Ft Ceiling, North-West View with no obstructions.Close To York University Steps To Mall, Park, Plaza, Major Hwys Modern Building W/Exercise Rm, Concierge, Gym, Yoga & Party Rm, Movie Theatre, Guest Suites, Indoor Swimming Pool, Games Room.
Property Features: Clear View, Hospital, Park, Public Transit, School
Laundry Features: Ensuite
Interior Features: None
Cross Street: Highway 7 Rd /Creditstone Rd
Key Facts
- Days on: 1 days
- Mls Status: New
- Board Property Type: Condo
- Bedrooms Total: 2
- Bedrooms Above Grade: 2
- Bathrooms Total Integer: 2
- Locker: Owned
- Locker Level: M
- Locker Number: 179
- Kitchens Total: 1
- Parking Total: 1
- Parking Features: None
- Garage Type: Underground
- Heat Source: Gas
- Heat Type: Forced Air
- Cooling: Central Air
- Living Area Range: 800-899 Square Feet
Location 2908, Highway 7, Concord, Vaughan
Search by Neighbourhoods

























