9580, Islington, Sonoma Heights, Vaughan, Residential Condo & Other
MLS® Number N12615032
For Lease $ 2,450
- 2 beds |
- 3 baths |
- 900-999 SQFT

Description
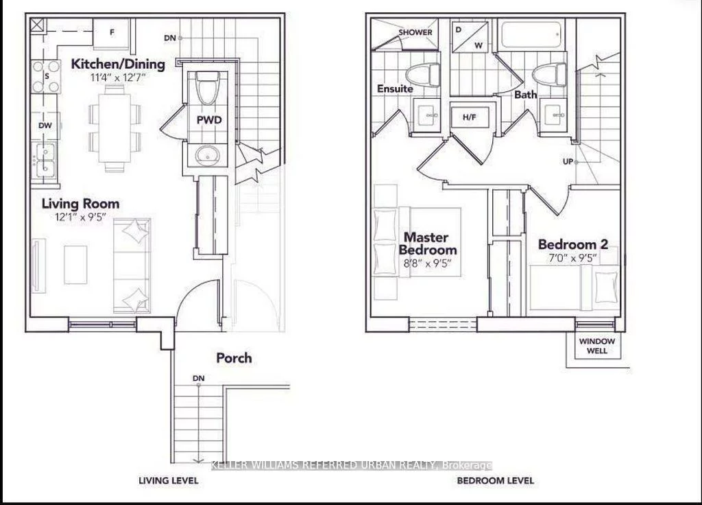
Residential Condo & Other Condo Townhouse For Lease.
Stunning Stacked Townhome in Sonoma Heights! Freshly painted, open-concept layout with modern finishes and stainless steel appliances. Features 2 bedrooms, 2.5 bathrooms, and 1 underground parking spot. Prime location near Highways 427 & 400, shops, restaurants, banks, walk-in clinic, and public transit-everything you need just steps away! Tenant pays utilities and provides insurance.
Laundry Features: Ensuite
Interior Features: Other
Cross Street: Islington/Rutherford
Key Facts
- Days on: 15 days
- Mls Status: New
- Bedrooms Total: 2
- Bedrooms Above Grade: 2
- Den / Family Room: Yes
- Bathrooms Total Integer: 3
- Locker: None
- Kitchens Total: 1
- Parking Total: 1
- Parking Features: Underground
- Garage Type: Underground
- Heat Source: Gas
- Heat Type: Forced Air
- Cooling: Central Air
- Living Area Range: 900-999 Square Feet
Location 9580, Islington, Sonoma Heights, Vaughan
Search by Neighbourhoods









