81, Zenway, West Woodbridge Industrial Area, Vaughan, Commercial
MLS® Number N12594224
For Lease $ 17
- 1757 SQFT

Description
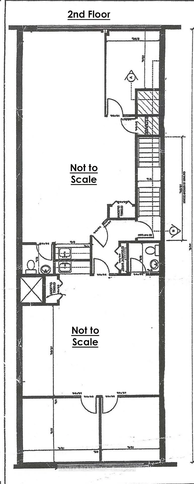
Commercial Office For Lease.
Prime second-floor office space fronting Zenway Blvd in a highly sought-after business area, featuring two washrooms (including one with a shower), two kitchenettes, private offices and open work areas, with bright natural light from both front and back windows. Ideally suited for a wide range of professional office uses, the property offers exceptional accessibility just two blocks from Highways 427 and 407 and only three highway exits from Pearson International Airport, and is surrounded by nearby amenities including the Holiday Inn, Element Hotel and multiple restaurants.
Community Features: Major Highway, Public Transit
Cross Street: Hwy 7/27/427/407
Key Facts
- Days on: 3 days
- Mls Status: New
- Board Property Type: Com
- Lot Type: Unit
- Garage Type: Outside/Surface
- Heat Type: Gas Forced Air Closed
- Cooling: Yes
- Building Area Total: 1757 Square Feet
Location 81, Zenway, West Woodbridge Industrial Area, Vaughan
Search by Neighbourhoods


