47, Greendowns, Scarborough Village, Toronto, Residential Freehold
- 4 beds |
- 2 baths |
- 1100-1500 SQFT

Description
Residential Freehold Detached For Sale.
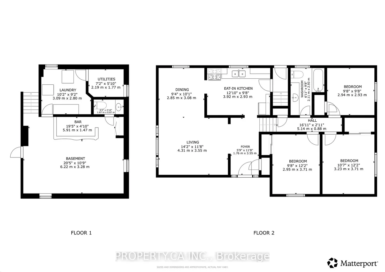
Located in the heart of Scarborough Village, 47 Greendowns Drive is a rare find offering incredible versatility for families, renovators, and investors alike. This solid home features three spacious upper-level bedrooms and a lower-level family room with a wet bar that provides the perfect footprint for a potential in - law suite or fourth bedroom. The property hides a private, south-facing backyard garden with ample parking for five cars, including a detached garage. Perfectly situated for an active lifestyle, you are just a walk from the Eglinton GO Train, local shops, schools, and the lake. Whether you're exploring nearby forested hiking trails or enjoying the local parks and playgrounds, everything you need is right around the corner. Come for a visit and see why this charming home is the perfect place to grow.
Property Features: Arts Centre, Beach, Hospital, Lake Access, Library, Marina
Interior Features: Storage, Water Heater
Cross Street: Markham Rd and Kingston Rd
Direction Faces: South
Key Facts
- Days on: 0 days
- Mls Status: New
- Bedrooms Total: 4
- Bedrooms Below Grade: 1
- Bedrooms Above Grade: 3
- Bathrooms Total Integer: 2
- Lot Width: 45.11
- Kitchens Total: 1
- Parking Total: 6
- Parking Spaces: 5
- Parking Features: Available, Private
- Garage Type: Detached
- Heat Source: Gas
- Heat Type: Forced Air
- Cooling: Central Air
- Living Area Range: 1100-1500 Square Feet
Location 47, Greendowns, Scarborough Village, Toronto
Search by Neighbourhoods

























