372, St Germain, Lawrence Park North, Toronto, Residential Freehold
- 3 beds |
- 2 baths |
- 3750 SQFT

Description
Residential Freehold Detached For Sale.
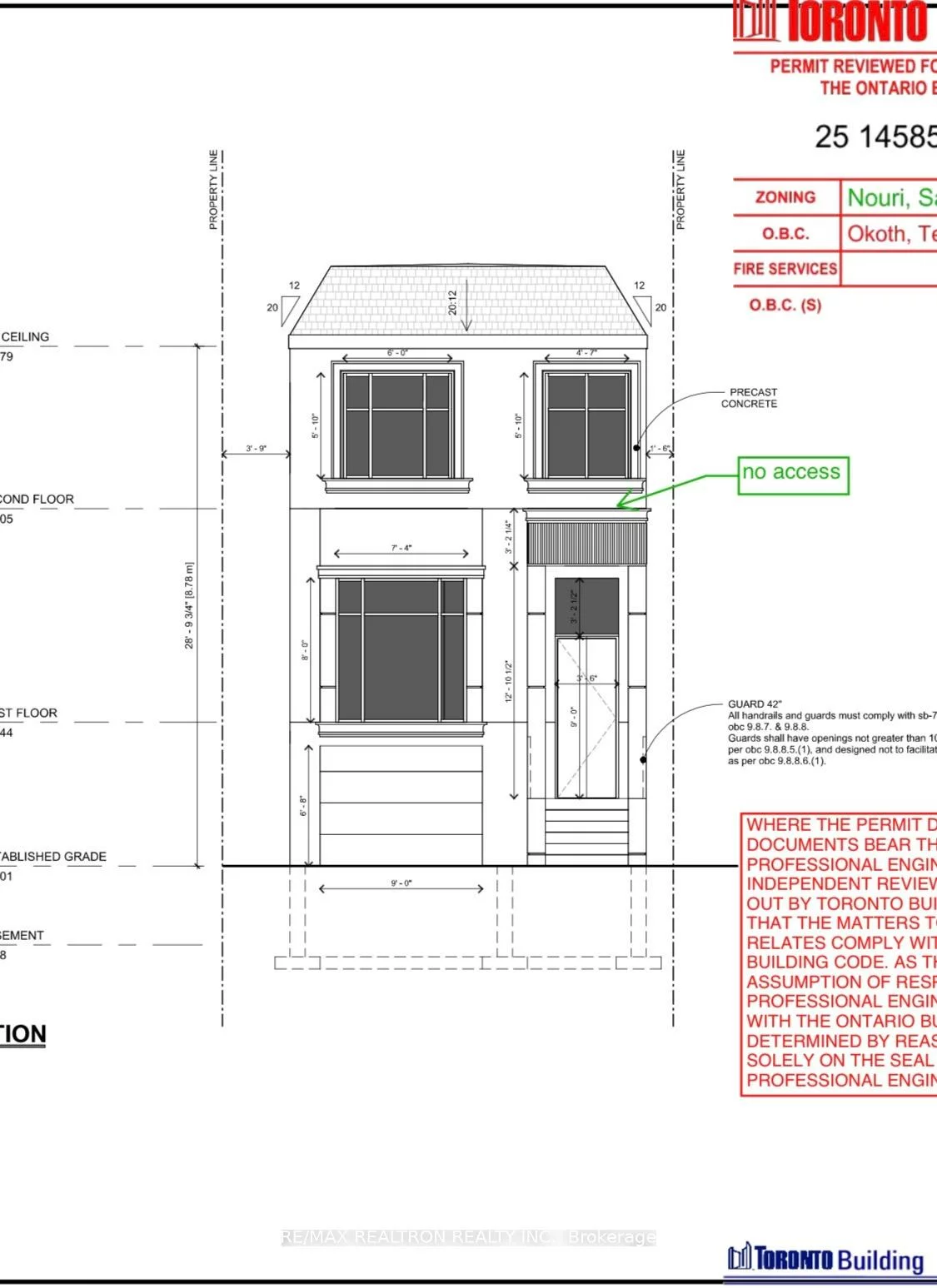
Attention Builder's & Investors! Exceptional Opportunity in Prime Avenue Rd & North of Lawrence W. Location. Building Permit Ready For This Property! Discover the perfect chance to own in one of the most desirable pockets of Lawrence Park North. This charming 2-storey family residence is full of character and potential, ideally situated just steps from top-rated schools, parks, shops, and transit.Inside, the home features a bright and spacious living room with a cozy fireplace, custom built-ins, and beautiful leaded glass windows. Elegant French doors open to the formal dining room, showcasing timeless detailing and seamless access to the updated kitchen.The kitchen boasts brand-new stainless steel appliances, and offers a walkout to a two-tiered deck, ideal for entertaining, overlooking a deep backyard with mature gardens and endless potential.Upstairs, you'll find a generous primary bedroom, two additional well-sized bedrooms, and a full family bath. The finished lower level includes a large rec room or children's play area, laundry, storage, and a second bathroom.This home is move-in ready, with building permits already secured making it an ideal choice for investors, renovators, or families looking to customize their dream home.Located just moments from John Wanless PS, Lawrence Park CI, TTC, scenic trails, restaurants, boutiques, and all the vibrant amenities this coveted neighbourhood has to offer. Don't miss this rare opportunity to invest or settle in one of Torontos most prestigious family-friendly communities!
Property Features: Park, Place Of Worship, Public Transit
Interior Features: None
Cross Street: Lawrence Ave W & Avenue Rd
Direction Faces: North
Key Facts
- Days on: 22 days
- Mls Status: New
- Bedrooms Total: 3
- Bedrooms Above Grade: 3
- Bathrooms Total Integer: 2
- Lot Width: 25.00
- Kitchens Total: 1
- Parking Total: 1
- Parking Spaces: 1
- Parking Features: Mutual
- Garage Type: Detached
- Heat Source: Gas
- Heat Type: Radiant
- Cooling: Wall Unit(s)
- Lot Size Area: 3750 Square Feet
- Living Area Range: 1100-1500 Square Feet
Location 372, St Germain, Lawrence Park North, Toronto
Search by Neighbourhoods

























