120, Parliament, Moss Park, Toronto, Residential Condo & Other
- 2 beds |
- 1 baths |
- 0-499 SQFT

Description
Residential Condo & Other Condo Apartment For Sale.
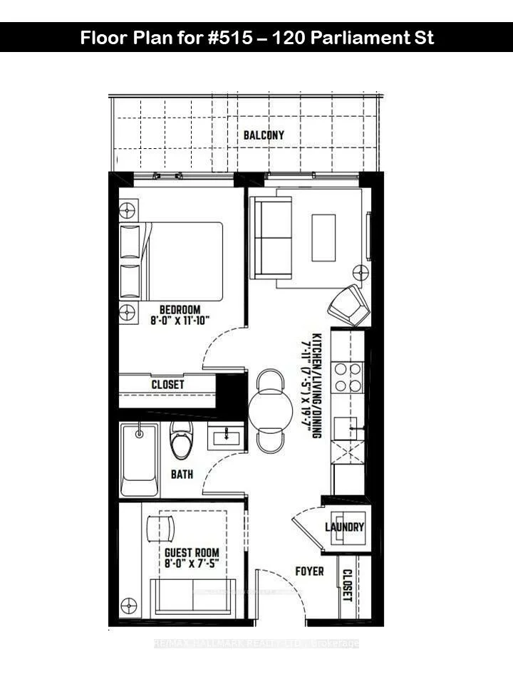
Get excited living @ EAST United ~ Dwell Well with modern living in this contemporary 21-storey rising over the cityscape situated in the sought after hip vibe of Corktown / Distillery where every amenity is at your doorstep. Linear stylish aesthetic with clean lines offers a sleek functional space with soaring 9'FT (in living/dining/bedroom areas) smooth ceilings gives a lofty feeling. Wide welcoming foyer has double sliding closet for ample storage, luminous recessed and upgraded lighting leads into your open concept culinary kitchen with luxe living space and complimentary sophisticated noir accent wall, walk-out to your prime south facing balcony with leafy tree top views and layered urban views, spa-inspired 4PC Bath with soaker tub and rain shower head, separate Den is perfect home/office or bedroom for guests. 1/One Owned Storage Locker/Level C#71. You'll enjoy the 5-star amenities: 24HR Concierge, 2-storey lobby, Artists studio/workshop, Pet spa, Yoga/change rooms, Sauna, Media Lounge, State of the Art Fitness Centre and Music Room. The Party Room and Roof Top Terrace are located on the 11th floor that boasts amazing city views, dining/lounge areas, fire pit and outdoor cinema. This is more than a place to live - it's a way of life. Wake up to the pulse of the city, stroll to your favourite café, and unwind on your private terrace as the skyline glows. "Where city soul and style align - you'll love coming home to 515."
Laundry Features: In-Suite Laundry
Interior Features: Carpet Free
Cross Street: Parliament/Adelaide
Building Name: East United
Key Facts
- Days on: 0 days
- Mls Status: New
- Board Property Type: Condo
- Bedrooms Total: 2
- Bedrooms Below Grade: 1
- Bedrooms Above Grade: 1
- Bathrooms Total Integer: 1
- Locker: Owned
- Locker Level: Level C
- Locker Number: #71
- Kitchens Total: 1
- Parking Features: Underground
- Garage Type: None
- Heat Source: Gas
- Heat Type: Forced Air
- Cooling: Central Air
- Living Area Range: 0-499 Square Feet
Location 120, Parliament, Moss Park, Toronto
Search by Neighbourhoods

























