186, Thirtieth, Alderwood, Toronto, Commercial

Description
Commercial Industrial For Sale.
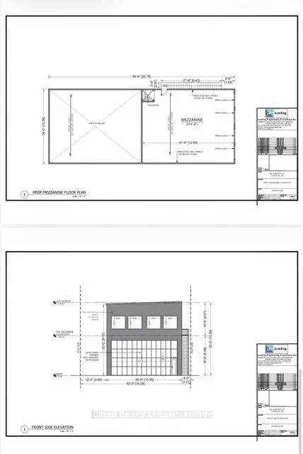
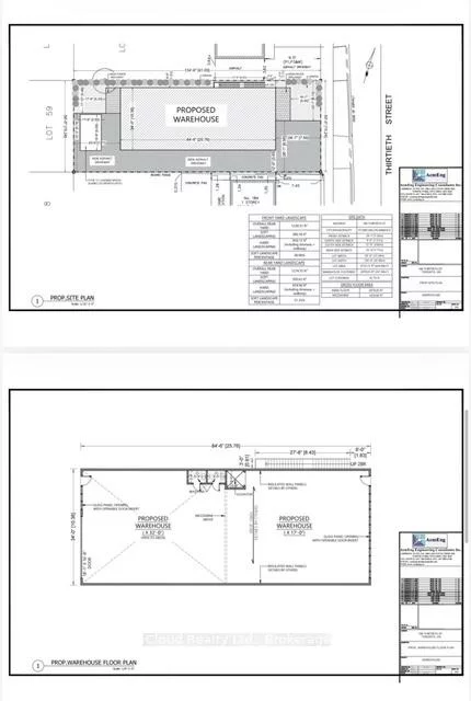
186 Thirtieth St. is a strategically located industrial property designed within a Core Employment Area, permitting a range of employment uses including warehouse development. Planning Status: the property has received final approval from the Toronto Local appeal Body for the construction of a warehouse building. the approval confirms that the proposed development complies with applicable planning policy and represents appropriate intensification of employment use on the site. Approved Development: Warehouse building with mezzanine/ functional rear loading configuration/site layout optimized for the lot's dimensions. Approved Variances ( Summary) Minor variances have been approved to facilitate efficient site design, including: Reduced side yard setbacks/reduced driveway and loading access width ( designed for safe one-way operation). These variances were reviewed and accepted by both the Tribunal and the City with no opposition. Key Highlights for Buyers and Developers: Fully approved development concept removes entitlement risk. Employment zoning ( E.10)supports commercial /industrial uses. Infill development opportunity in a supply-constrained employment area. Efficient building footprint maximizes usable space on the lot and City- supported planning outcome. Next steps and conditions: standard conditions remain, including landscape approval, tree permits and financial securities- typical for developments of this nature. Supporting Materials Available: TLAB Decision & Order ( March 19 2026) , Approved site plan, floor plans and elevations as well as Planning and technical reports!
Community Features: Major Highway, Public Transit
Cross Street: Thirtieth Street and Horner Avenue
Key Facts
- Days on: 1 days
- Mls Status: New
- Lot Type: Lot
- Lot Width: 50.00
- Garage Type: Other
- Heat Type: Gas Forced Air Open
- Cooling: Yes
Location 186, Thirtieth, Alderwood, Toronto
Search by Neighbourhoods






