1662 & 1664, Dufferin, Corso Italia-Davenport, Toronto, Commercial
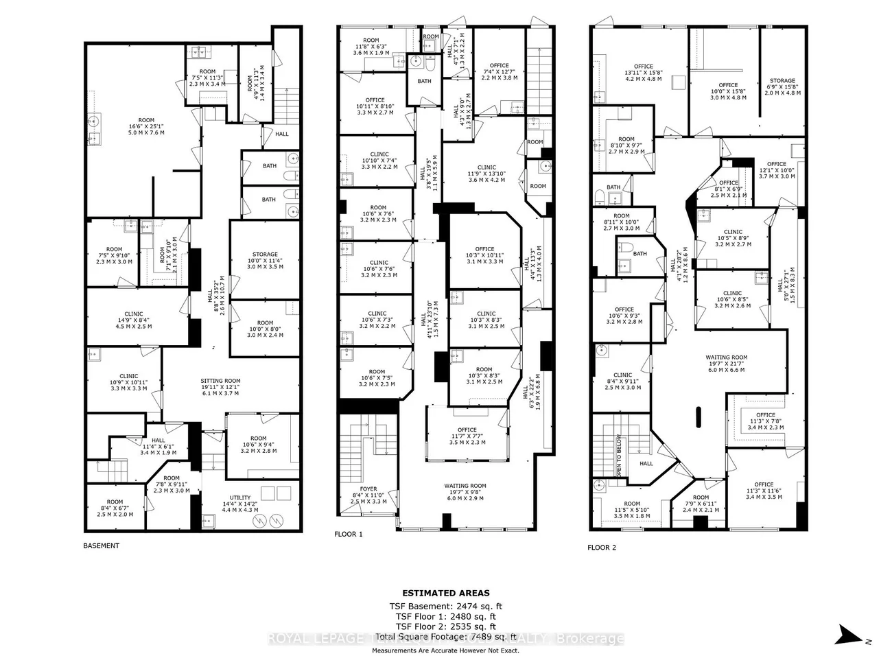
- 7489 SQFT

Description
Commercial Commercial Retail For Sale.
Exceptional opportunity to acquire a well-maintained commercial building in a high-exposure, high-traffic location at the busy intersection of Dufferin & St. Clair. Configured as 3 separate units, each with its own entrance, offering excellent flexibility for a variety of commercial uses. Previously used as medical offices/clinics, with the main floor formerly operating as a pizza shop, making it well-suited for medical, professional, retail, or foodservice uses. Approx. 2,500 sq. ft. per floor (see floor plans). Property features 6 rear parking spaces, 2 furnaces, 2 hot water tanks, and 2 A/C units (all owned; no rental equipment). Ideal opportunity for investors and end users alike. Top floor currently tenanted, with tenant interested in remaining, offering potential for immediate rental income and an excellent option for buyers looking to occupy part of the building while offsetting carrying costs. Prime location with outstanding visibility, strong pedestrian and vehicular traffic, and convenient access for clients, customers, or patients. Rare opportunity to secure a versatile commercial asset in a strategic Toronto location with significant upside.
Cross Street: Dufferin & St. Clair Ave W
Key Facts
- Days on: 0 days
- Mls Status: New
- Lot Type: Building
- Lot Width: 65.36
- Parking Spaces: 6
- Garage Type: Outside/Surface
- Heat Type: Gas Forced Air Open
- Cooling: Yes
- Building Area Total: 7489 Square Feet
- Lot Size Area: 2020 Square Feet
Location 1662 & 1664, Dufferin, Corso Italia-Davenport, Toronto
Search by Neighbourhoods

























