3865, LAKE SHORE, Long Branch, Toronto, Commercial
MLS® Number W12676936
For Sale $ 670,000
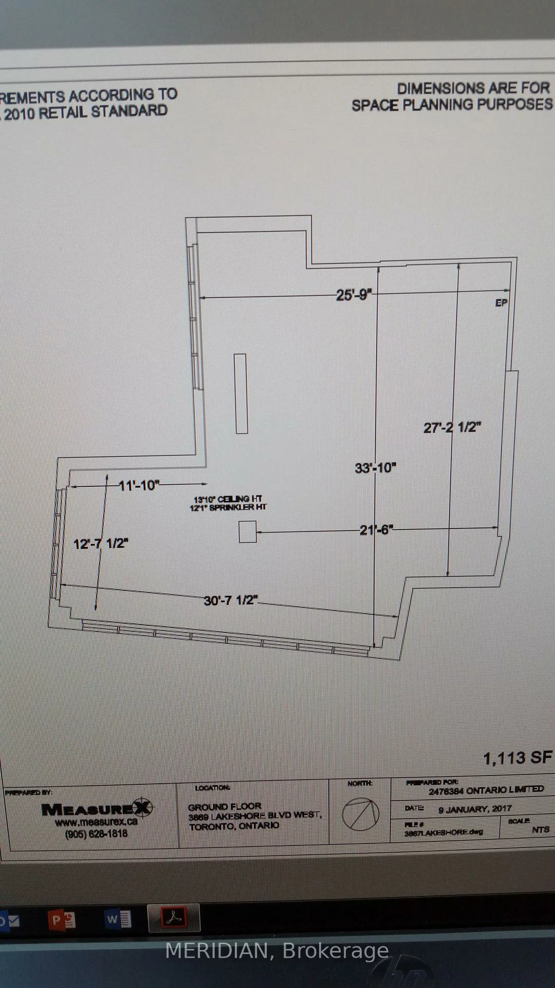
- 1113 SQFT

Description
Commercial Commercial Retail For Sale.
Great investment condo unit, currently leased to a pet grooming company since Sep.2023, Current lease till August 2028 with 5 yrs renewal option, great tenant and always pays on time. Unit generates around $4200/Month taxes included for the current year. Unit was built from scratch in 2023 with lots of high quality upgrades. 1,113 sf of great finished space with Handicap accessible washroom and Kitchenette, Laminate floors and high quality glass dividers, Close to QEW & Gardiner EXPY and steps to GO Station.
Cross Street: Lake Shore Blvd w & 42nd street
Key Facts
- Days on: 0 days
- Mls Status: Sold Conditional
- Lot Type: Unit
- Garage Type: None
- Heat Type: Gas Forced Air Closed
- Cooling: Yes
- Building Area Total: 1113 Square Feet
- Retail Area: 1113 Sq Ft
Location 3865, LAKE SHORE, Long Branch, Toronto
Search by Neighbourhoods






















