2855, Markham, Rouge E11, Toronto, Commercial
- 1 baths |
- 2800 SQFT

Description
Commercial Commercial Retail For Sale.
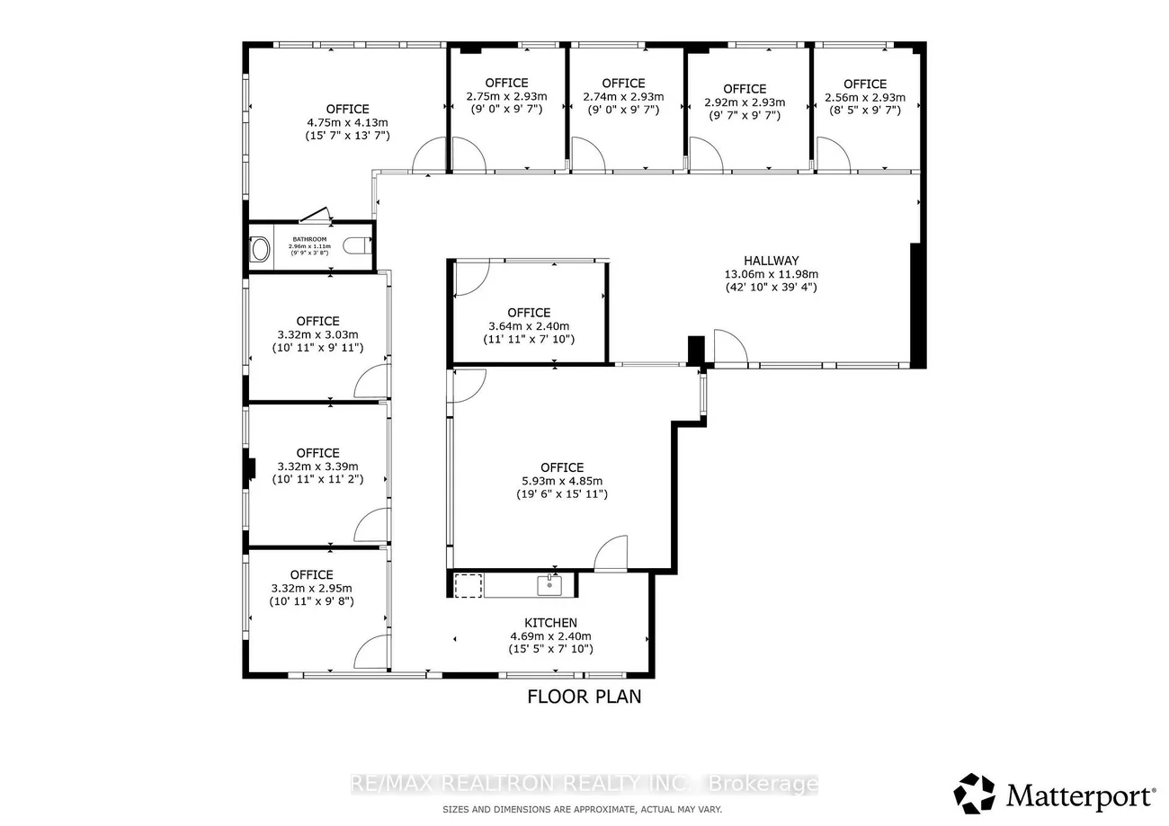
An exceptional opportunity to elevate your business in this 2,800 sq. ft. fully finished, modern office space, designed for companies that value image, functionality, and first impressions. Wrapped in floor-to-ceiling glass, this striking office is flooded with natural light and offers expansive views that create an inspiring, high-performance work environment. The layout features a large, upscale reception area that immediately sets a refined tone for clients and visitors, nine private glass offices that balance privacy with openness, a statement boardroom ideal for executive meetings and presentations, and a sleek, modern kitchen for staff convenience and collaboration. Every detail has been thoughtfully curated to reflect a downtown-caliber aesthetic, delivering a clean, sophisticated atmosphere rarely found in the area. This turnkey space is perfectly suited for professional firms, corporate headquarters, tech companies, or creative teams seeking an office that reinforces their brand and supports growth. A rare blend of modern design, functionality, and prestige, this is more than just an office-it's a space that makes a statement and positions your business for success.
Cross Street: Markham & McNicoll
Key Facts
- Days on: 0 days
- Mls Status: New
- Bathrooms Total Integer: 1
- Lot Type: Unit
- Garage Type: Outside/Surface
- Heat Type: Gas Forced Air Closed
- Cooling: Yes
- Building Area Total: 2800 Square Feet
- Retail Area: 100 %
Location 2855, Markham, Rouge E11, Toronto
Search by Neighbourhoods

























