555, Ellesmere, Wexford-Maryvale, Toronto, Commercial
- 130680 SQFT

Description
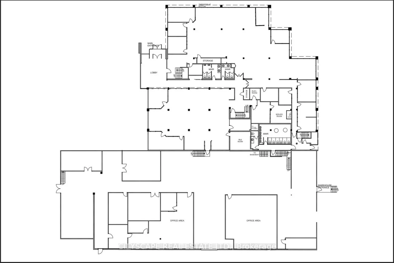
Commercial Industrial For Sale.
CITYSCAPE REAL ESTATE is pleased to present 555 Ellesmere Road, Toronto, Ontario for sale. This prominent corner property features a flexible office-to-warehouse ratio and is ideally situated near the intersection of Ellesmere Road and Birchmount Road, offering excellent street exposure and accessibility. Conveniently located, the site is approximately 30 minutes to Downtown Toronto and 35 minutes to Toronto Pearson International Airport, making it an attractive option for a wide variety of users. Zoning is highly versatile and permits multiple uses, including office, industrial, educational facilities, and places of worship. The property also benefits from ample on-site parking and strong electrical capacity, making it suitable for a range of business operations. Buyer to perform their own due diligence with respect to zoning, permitted uses, building condition, and all municipal approvals or permits required for their intended use
Cross Street: Ellesmere Rd & Principal Rd
Key Facts
- Days on: 0 days
- Mls Status: Sold Conditional
- Lot Type: Building
- Lot Width: 310.31
- Parking Spaces: 100
- Garage Type: None
- Heat Type: Gas Forced Air Open
- Cooling: Yes
- Building Area Total: 2 Acres
Location 555, Ellesmere, Wexford-Maryvale, Toronto
Search by Neighbourhoods








