65, Mutual, Church-Yonge Corridor, Toronto, Residential Condo & Other
- 1 beds |
- 1 baths |
- 0-499 SQFT

Description
Residential Condo & Other Condo Apartment For Lease.
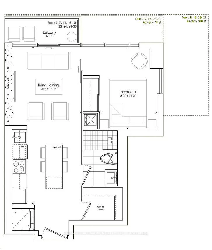
Experience the best of modern downtown living in this pristine, near-new 1-bedroom suite at the Ivy Condo, offering exceptional quality without the luxury price tag. The unit features an open-concept kitchen with premium stainless steel appliances and quartz countertops, complemented by sleek laminate flooring, the ease of ensuite laundry, and a 24-hour concierge. A huge bonus is the oversized storage room located right within the suiteperfect for decluttering! Live with unmatched convenience: you're just a short walk to the TTC, Toronto Metropolitan University (TMU), the Eaton Centre, parks, and diverse restaurants. Non-smokers and no pets, please. Also the Internet is included.
Laundry Features: Ensuite
Interior Features: Carpet Free
Cross Street: Dundas and Mutual
Key Facts
- Days on: 3 days
- Mls Status: New
- Bedrooms Total: 1
- Bedrooms Above Grade: 1
- Bathrooms Total Integer: 1
- Locker: None
- Kitchens Total: 1
- Garage Type: Underground
- Heat Source: Gas
- Heat Type: Forced Air
- Cooling: Central Air
- Living Area Range: 0-499 Square Feet
Location 65, Mutual, Church-Yonge Corridor, Toronto
Search by Neighbourhoods


