90, Wingold, Yorkdale-Glen Park, Toronto, Commercial
MLS® Number W12733218
For Lease $ 25
- 3990 SQFT

Description
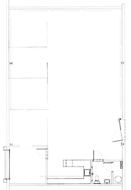
Commercial Office For Lease.
Build-out unit #6 with high-end finishes, office/showroom space in the heart of the Design District with excellent street exposure. Professionally managed complex. Track lighting throughout, finished concrete flooring, ceiling lights/fans, private washroom, kitchenette, dedicated HVAC unit, dedicated hydro and gas metres. Parking available on site. Steps to TTC bus stop. Close to Highway 401, 400, and Glencairn Subway Station. Ideal for designers, architects, accountants, lawyers, tech firms, retailers and traditional office users. Note, build-outs can be removed or modified as needed to suit tenant requirements.
Cross Street: Wingold Avenue & Lansdowne Avenue
Key Facts
- Days on: 1 days
- Mls Status: New
- Lot Type: Unit
- Garage Type: Outside/Surface
- Heat Type: Gas Forced Air Open
- Cooling: Yes
- Building Area Total: 3990 Square Feet
Location 90, Wingold, Yorkdale-Glen Park, Toronto
Search by Neighbourhoods
















