1550, Eglinton, Briar Hill-Belgravia, Toronto, Commercial
MLS® Number W12627200
For Lease $ 4,900
- 1520 SQFT

Description
Commercial Commercial Retail For Lease.
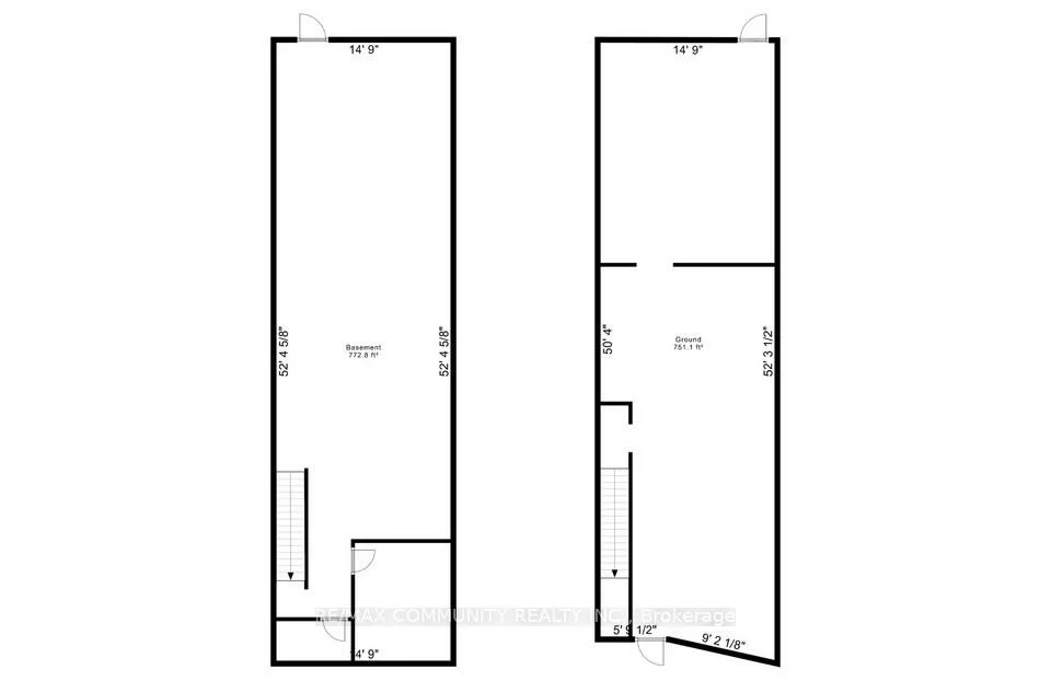
Exceptional opportunity in one of Toronto's highest-traffic corridors, just steps from the brand-new Oakwood LRT station, Allen Road, and surrounded by multiple newly built residential developments. The unit comes equipped with a newly installed 8-foot commercial hood and tank less water heater. A spacious basement prep area provides excellent storage or additional kitchen capacity, while the rear lane way offers convenient receiving access and dedicated personal parking.
Cross Street: Eglinton/Allen Expressway
Key Facts
- Days on: 11 days
- Mls Status: Leased Conditional
- Lot Type: Building
- Lot Width: 16.00
- Parking Spaces: 2
- Garage Type: None
- Heat Type: Water Radiators
- Cooling: Yes
- Building Area Total: 1520 Square Feet
- Retail Area: 1500 Sq Ft
Location 1550, Eglinton, Briar Hill-Belgravia, Toronto
Search by Neighbourhoods

