170, Perth, Dovercourt-Wallace Emerson-Junction, Toronto, Commercial
- 1828 SQFT

Description
Commercial Commercial Retail For Lease.
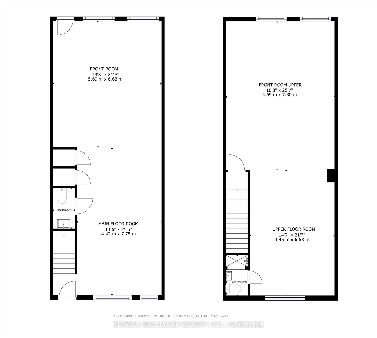
Discover an exceptional leasing opportunity with this brand-new, two-level unit, thoughtfully designed for versatility and convenience. The main floor boasts a spacious, open layout that is perfect for a showroom, professional office, or independent business. It features sleek polished concrete floors, a convenient 2-piece bathroom, and access to your own private outdoor space. Additionally, this unit includes a dedicated on-site parking spot, making daily access easy and hassle-free. The flexible floor plan allows for endless possibilities to customize and adapt the space to suit your specific needs and vision. The unit also comes with a roughed-in kitchen, providing a seamless opportunity to install a fully functional kitchen setup for client meetings or living purposes. Upstairs, you'll find a comfortable 3-piece bathroom and additional versatile space perfect for creating a private bedroom, lounge area, or additional workspace, making it ideal for a combined live/work setup. Located in a vibrant, dynamic neighbourhood, this unit enjoys excellent transit options just steps away including nearby subway stations, Bloor GO Station, and UP Express enabling effortless commuting across the city and beyond. The surrounding area offers a perfect mix of lush green spaces, trendy cafes, restaurants, and cultural hotspots, creating an inspiring environment for entrepreneurs, creatives, and professionals alike. This stunning unit seamlessly combines modern design with practicality and flexibility offering a unique opportunity to establish your presence in a thriving, well-connected location. Whether you're launching a new business, working remotely, or combining work and living in one vibrant space, this property provides everything you need. Don't miss your chance to secure this adaptable and stylish workspace in one of the most desirable neighbourhoods. Schedule a viewing today and make this exceptional space yours!
Cross Street: Bloor Street West & Symington Avenue
Key Facts
- Days on: 2 days
- Mls Status: New
- Lot Type: Lot
- Lot Width: 68.00
- Parking Spaces: 1
- Garage Type: None
- Heat Type: Gas Forced Air Open
- Cooling: Yes
- Building Area Total: 1828 Square Feet
- Retail Area: 1828 Sq Ft
- Lot Size Area: 8500 Square Feet
Location 170, Perth, Dovercourt-Wallace Emerson-Junction, Toronto
Search by Neighbourhoods
