880, Ellesmere, Dorset Park, Toronto, Commercial
- 1 baths |
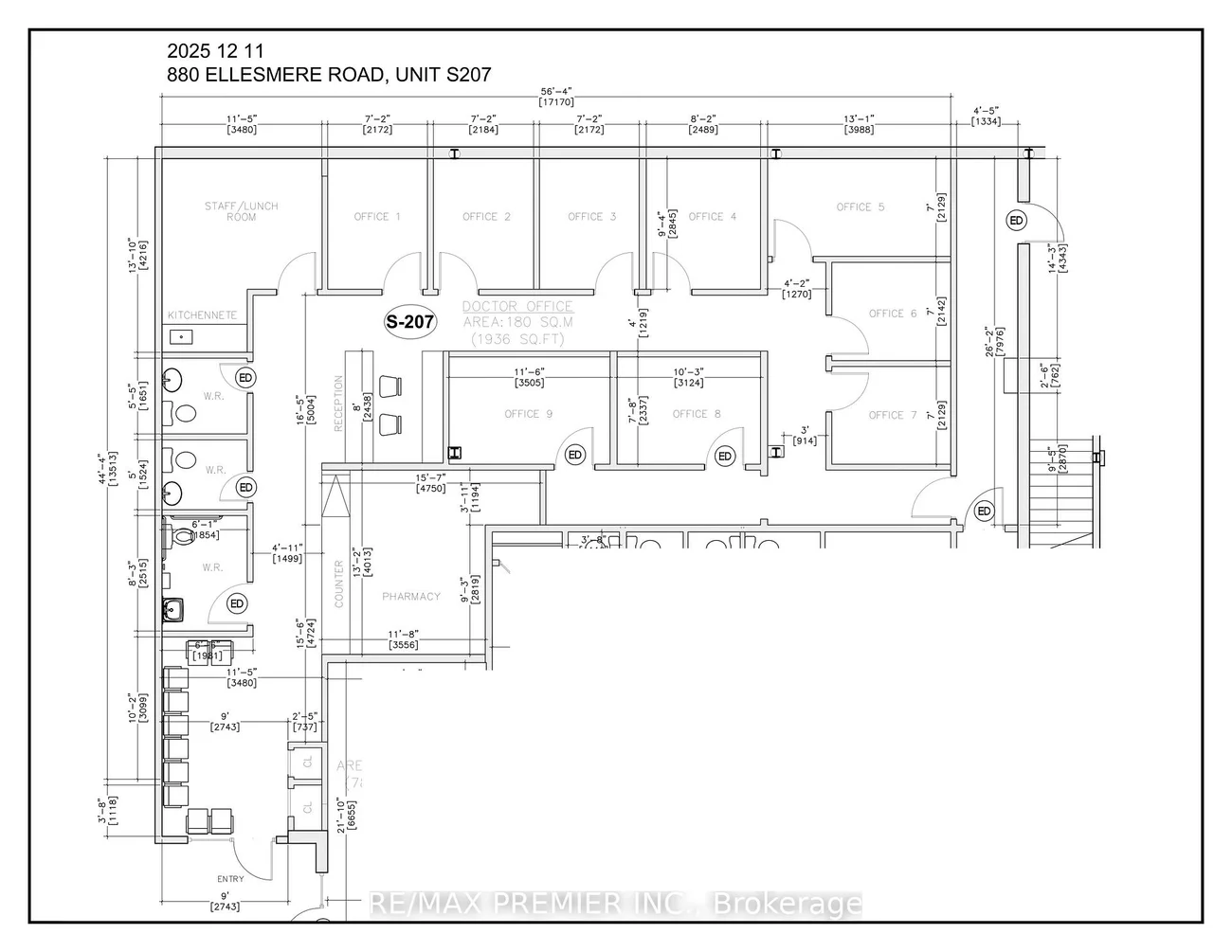
- 1936 SQFT

Description
Commercial Office For Lease.
Prime Main-Floor Retail / Professional Office Opportunity. Ideal for Doctor's Office with Pharmacy. 9 Offices + Pharmacy. Excellent main-floor space ideal for professional office or retail use, offering 1,936 sq. ft. (Unit S207) with the option to combine with Unit S205 for a total of 2,721 sq. ft. Floor Plans Attached. Located in a high-traffic plaza with outstanding street-front exposure at the strategic corner of Kennedy Road and Ellesmere Road, this well-established trade area is surrounded by a diverse mix of tenants and high-density condominium towers and residential townhomes, ensuring consistent foot and vehicular traffic. Key Features: Prominent front signage and pylon signage available, Excellent ingress and egress from Ellesmere Road, Strong visibility with pedestrian and vehicular exposure, Ample surface and underground parking, Elevator access to second- and third-floor offices, Quick access to Highway 401Convenient access to TTC transit and nearby amenities. An ideal opportunity for businesses seeking visibility, accessibility, and a strong surrounding customer base.
Community Features: Major Highway, Public Transit
Cross Street: Kennedy/Ellesmere Rd
Key Facts
- Days on: 1 days
- Mls Status: New
- Board Property Type: Com
- Bathrooms Total Integer: 1
- Lot Type: Unit
- Garage Type: Plaza
- Heat Type: Gas Forced Air Closed
- Cooling: Yes
- Building Area Total: 1936 Square Feet
Location 880, Ellesmere, Dorset Park, Toronto
Search by Neighbourhoods











