473, Oakwood, Oakwood Village, Toronto, Commercial
- 3434 SQFT

Description
Commercial Commercial Retail For Lease.
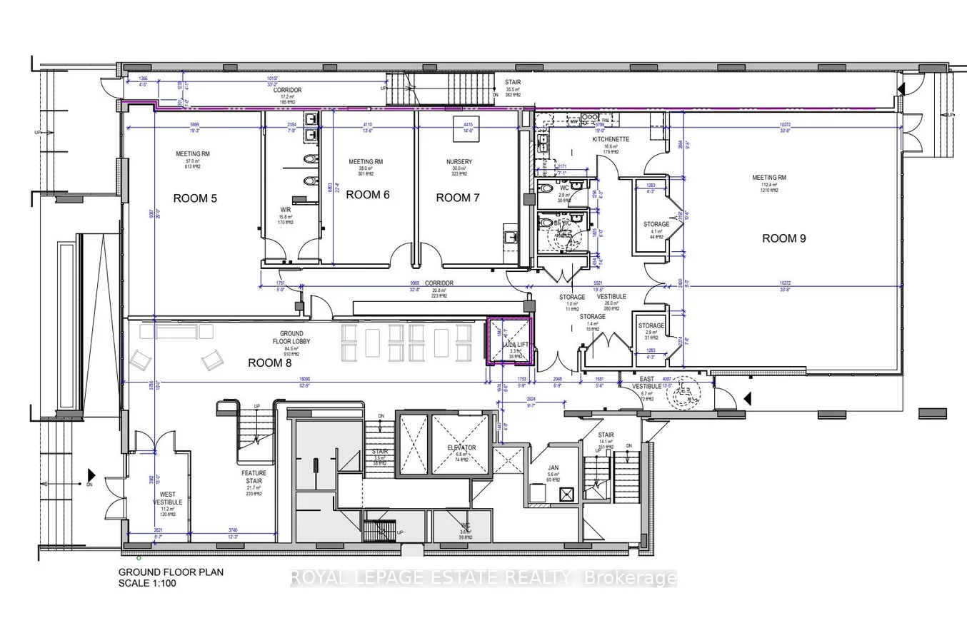
Renovations are complete and the flagship main floor of our new building is available forlease. A short walk south of Eglinton CrossTown, or north from St Clair streetcar, thisrevitalizing area is perfect for your uptown west business. Large main floor perfect for Yoga,Dance, Marshall Arts, Fitness, or Wellness group activities, recreational children's children'sprograms or tutoring. Includes floor-to-ceiling windows and a covered outdoor area. The 3434square foot area may be divided into private, smaller rooms.Let your business enjoy the partnership with the landlord, other tenants and communities. Enjoyno additional utility and internet charges (all included in rent). Enjoy lower GST charges andproperty tax charges (due to Landlord status as a church). Enjoy preferential access to theupstairs event spaces. Elevator access to accessible washrooms.
Community Features: Public Transit, Subways
Cross Street: Enlington Ave W & Oakwood Ave
Key Facts
- Days on: 0 days
- Mls Status: Leased Conditional
- Lot Type: Lot
- Lot Width: 77.27
- Garage Type: None
- Heat Type: Electric Forced Air
- Cooling: Yes
- Building Area Total: 3434 Sq Ft Divisible
- Retail Area: 3434 Sq Ft Divisible
Location 473, Oakwood, Oakwood Village, Toronto
Search by Neighbourhoods









