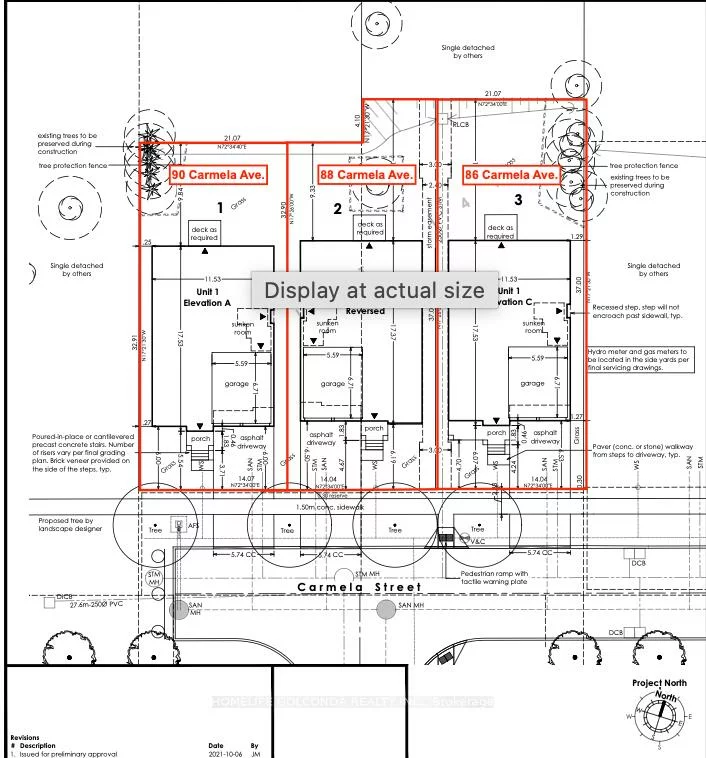
86,88,90, Carmela, Oak Ridges, Richmond Hill, Commercial
MLS® Number N13012248
For Sale $ 2,188,000
- 15180 SQFT

Description
Commercial Land For Sale.
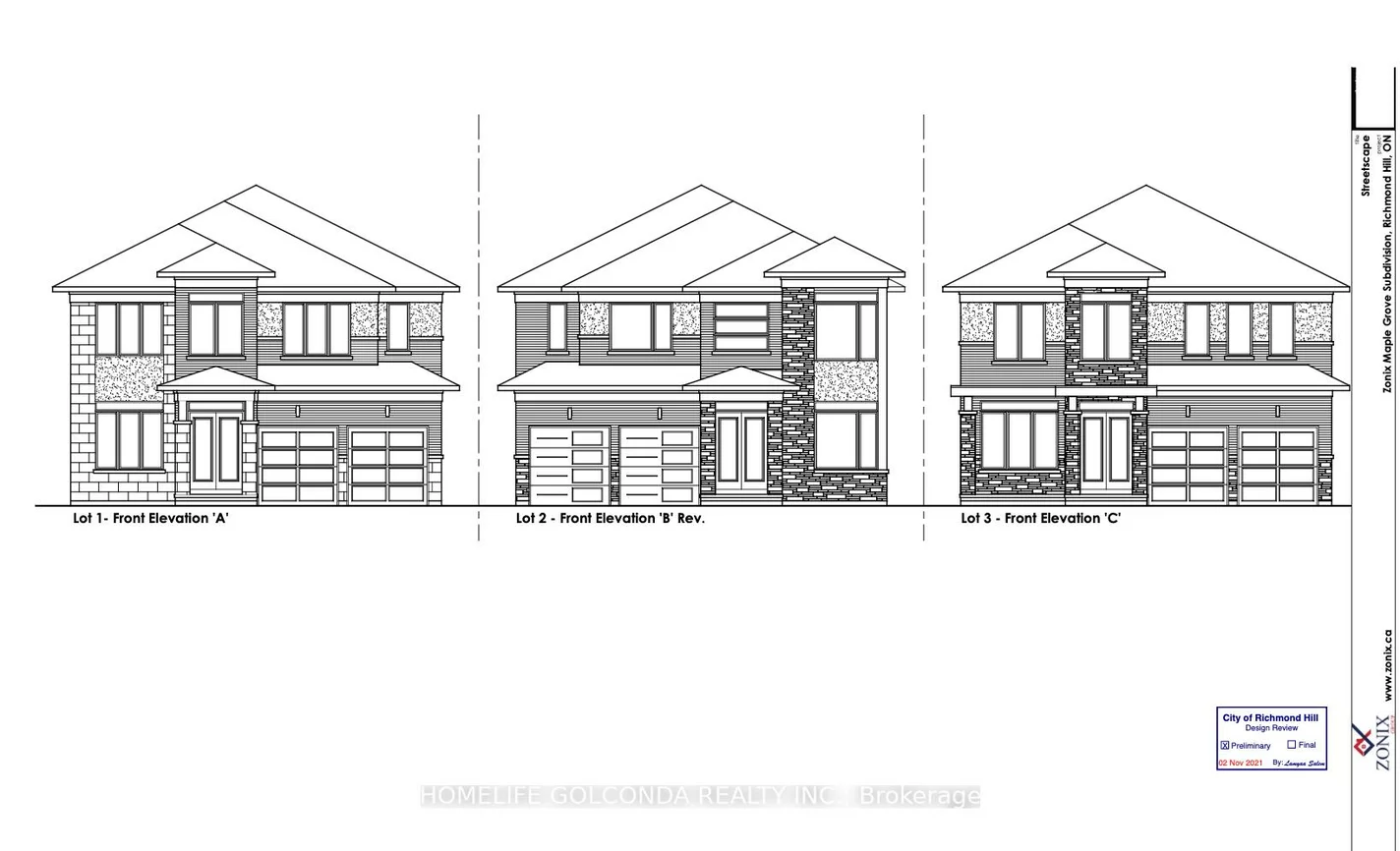
ATTN BUILDERS AND INVESTORS** These fully-serviced residential 3 lots in the prestigious Oak Ridges community are perfect for builders and homeowners alike, with approved plans for a 3,700 SF detached house on every Lot. The lots have paid servicing and pre-approved architectural plans, including a separate basement entrance. Just apply for your building permit to get started! This premier location offers luxury living with convenient access to top-rated schools, parks, shopping, dining, and major transit routes. The serene neighbourhood, surrounded by mature trees and upscale residences, is ideal for your vision
Cross Street: Yonge/Maple Grove
Key Facts
- Days on: 12 days
- Mls Status: New
- Lot Type: Lot
- Lot Width: 138.00
- Building Area Total: 15180 Square Feet
Location 86,88,90, Carmela, Oak Ridges, Richmond Hill
Search by Neighbourhoods



