65, McCague, Rural Richmond Hill, Richmond Hill, Residential Freehold
- 3 beds |
- 3 baths |
- 1500-2000 SQFT

Description
Residential Freehold Att/Row/Townhouse For Lease.
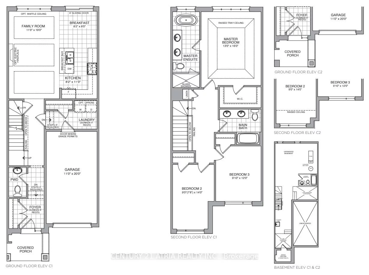
Beautiful 2.5-year-old Richlands townhouse, cared for by the original owner since day one. Located on a quiet street with homes only on the south side, this property faces north with peaceful greenbelt forest views. South-facing kitchen and main living area are filled with bright sunshine all day. 9' ceilings on both main and 2nd floor. Bright and spacious open concept layout. Modern kitchen with quartz countertops, large centre island with breakfast bar, extended upper cabinets, stainless steel appliances, and plenty of storage. Spotlights in family and dining rooms add warmth and style. Hardwood floors on 1st and 2nd floors and stairs - one of many quality upgrades invested in this home. Large primary bedroom with spa-like ensuite featuring a stand-alone bathtub, glass shower, and double sinks. Secondary bedrooms are generous and bright with large closets. The second upstairs bathroom also includes double sinks, providing comfort and convenience. Parking includes single car garage with direct access plus driveway space for one more vehicle. Fenced backyard offers private outdoor space. Steps to Richmond Green Sports Centre & Park with arenas, fields, trails, and splash pads. Top schools: Richmond Green Secondary and Victoria Square Public. Minutes to Costco, Home Depot, restaurants, supermarkets, and everyday shopping. Quick drive to Hwy 404 and public transit.
Property Features: Clear View, Greenbelt/Conservation, Park, Ravine, Wooded/Treed
Laundry Features: Ensuite
Interior Features: Auto Garage Door Remote, Carpet Free, ERV/HRV, Primary Bedroom - Main Floor, Separate Heating Controls, Separate Hydro Meter, Storage, Ventilation System, Water Heater, Water Softener
Cross Street: Leslie St & Elgin Mills Rd
Direction Faces: North
Key Facts
- Days on: 1 days
- Mls Status: Leased Conditional
- Bedrooms Total: 3
- Bedrooms Above Grade: 3
- Den / Family Room: Yes
- Bathrooms Total Integer: 3
- Kitchens Total: 1
- Parking Total: 1
- Parking Spaces: 1
- Parking Features: Available
- Garage Type: Built-In
- Heat Source: Gas
- Heat Type: Forced Air
- Cooling: Central Air
- Living Area Range: 1500-2000 Square Feet
Location 65, McCague, Rural Richmond Hill, Richmond Hill
Search by Neighbourhoods
