370, Highway 7, Doncrest, Richmond Hill, Residential Condo & Other
- 3 beds |
- 2 baths |
- 800-899 SQFT

Description
Residential Condo & Other Condo Apartment For Lease.
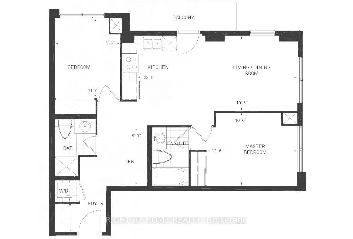
Bright Corner Suite with Unobstructed Parkette Views: Enjoy peaceful living in this bright corner suite offering unobstructed park views from above the tree line. Tucked away from road noise, this home offers a quiet, comfortable atmosphere while remaining conveniently located near transit and major highways. Offering approximately 815 sq. ft. of well-designed living space plus a 50 sq. ft. private balcony, the unit features a functional layout with an open-concept den that is ideal for a home office or flexible living space. The kitchen is equipped with full-sized appliances, including a fridge, stove, microwave oven and rangehood, and dishwasher, making everyday living both practical and comfortable. Residents will also benefit from a private locker for additional storage and access to excellent recreation facilities within the building. The location offers quick access to public transit, the GO Station, and Highways 404 and 407, with the added convenience of the upcoming T&T Supermarket nearby. This pet- and smoke-free condo unit offers a comfortable lifestyle in a quiet, well-connected setting. (Photos were taken when the unit was vacant)
Property Features: Clear View, Park, Public Transit
Laundry Features: In-Suite Laundry
Interior Features: Carpet Free, Separate Hydro Meter
Cross Street: Hwy7/Bayview/ 404
Building Name: Royal Gardens
Key Facts
- Days on: 6 days
- Mls Status: New
- Bedrooms Total: 3
- Bedrooms Below Grade: 1
- Bedrooms Above Grade: 2
- Bathrooms Total Integer: 2
- Locker: Exclusive
- Locker Level: P2
- Locker Number: 189
- Locker Unit: 189
- Kitchens Total: 1
- Parking Total: 1
- Garage Type: Underground
- Heat Source: Other
- Heat Type: Heat Pump
- Cooling: Central Air
- Living Area Range: 800-899 Square Feet
Location 370, Highway 7, Doncrest, Richmond Hill
Search by Neighbourhoods























