9600, Yonge, North Richvale, Richmond Hill, Residential Condo & Other
MLS® Number N12869476
For Lease $ 2,650
- 2 beds |
- 1 baths |
- 600-699 SQFT

Description
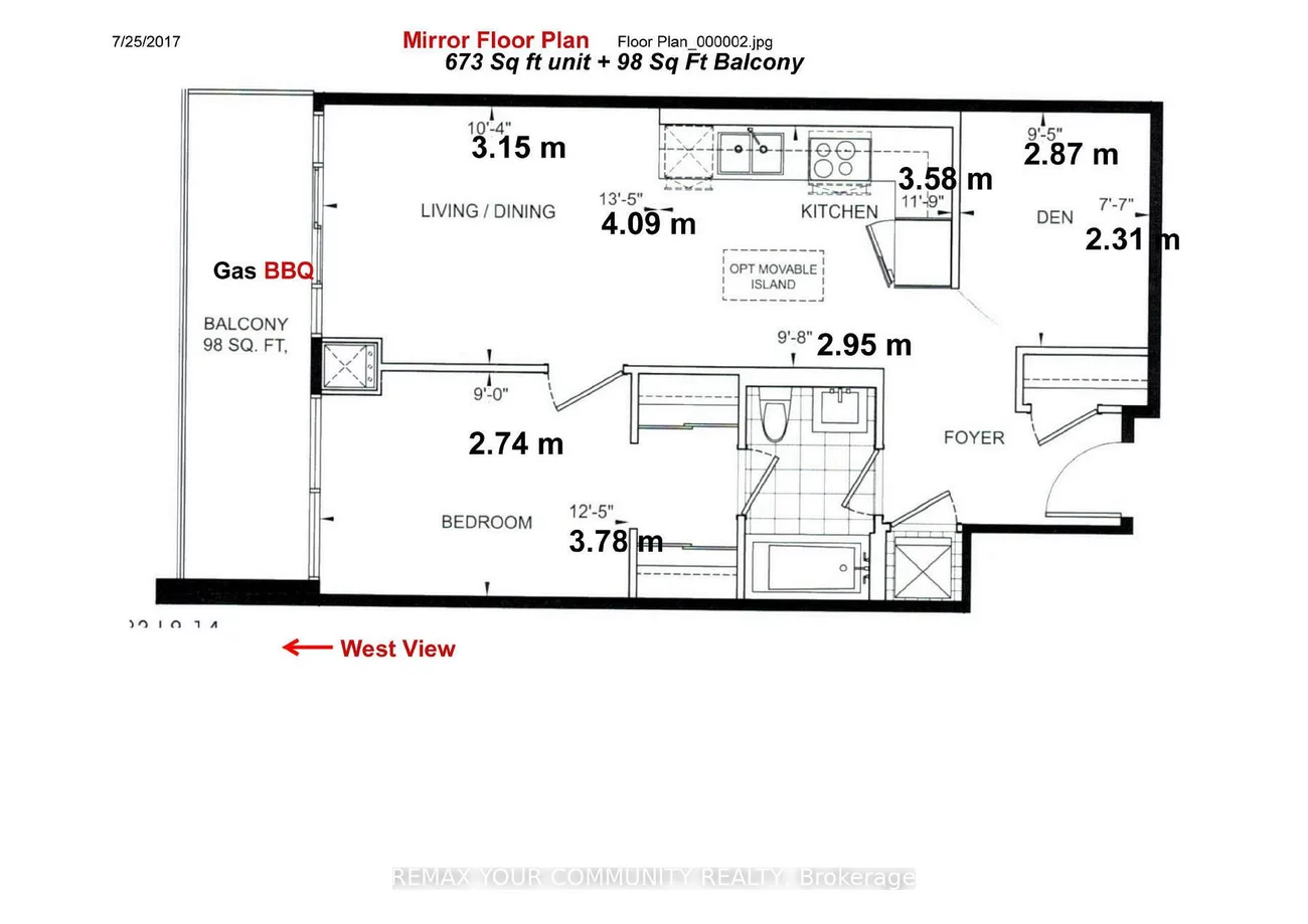
Residential Condo & Other Condo Apartment For Lease.
Very Motivated Landlord*** Fully FURNISHED ***1+Den (Den functions as 2nd BR) | Recently Painted | Modern Kitchen | Granite Counters | S/S Appliances | 9' Ceilings | Floor-to-Ceiling Windows. The Luxury: Grand Palace Condos | Private Balcony + Gas BBQ Hookup | Practical, Sun-filled Layout. The Location: Steps to Yonge/Hwy 7 | St. Theresa of Lisieux CHS District | Walk to Hillcrest Mall, Library, & Transit. Note: No Pets/No Smoking (Health Reasons).Very Motivated Landlord
Property Features: Clear View, Other, Public Transit
Laundry Features: Ensuite
Interior Features: Other
Cross Street: Yonge & 16th
Key Facts
- Days on: 10 days
- Mls Status: Price Change
- Bedrooms Total: 2
- Bedrooms Below Grade: 1
- Bedrooms Above Grade: 1
- Bathrooms Total Integer: 1
- Locker: Owned
- Locker Level: p3
- Locker Unit: 404
- Kitchens Total: 1
- Parking Total: 1
- Parking Features: Underground
- Garage Type: Underground
- Heat Source: Gas
- Heat Type: Forced Air
- Cooling: Central Air
- Living Area Range: 600-699 Square Feet
Location 9600, Yonge, North Richvale, Richmond Hill
Search by Neighbourhoods

























