13025, Yonge, Oak Ridges Lake Wilcox, Richmond Hill, Commercial
MLS® Number N12860768
For Lease $ 28
- 1 baths |
- 781 SQFT

Description
Commercial Commercial Retail For Lease.
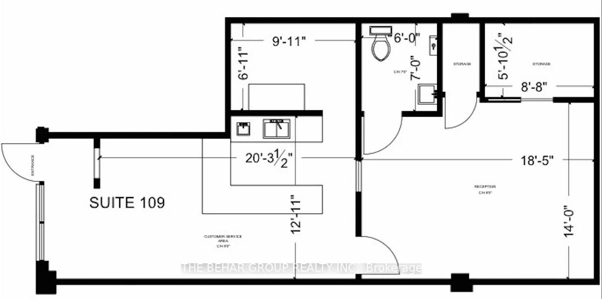
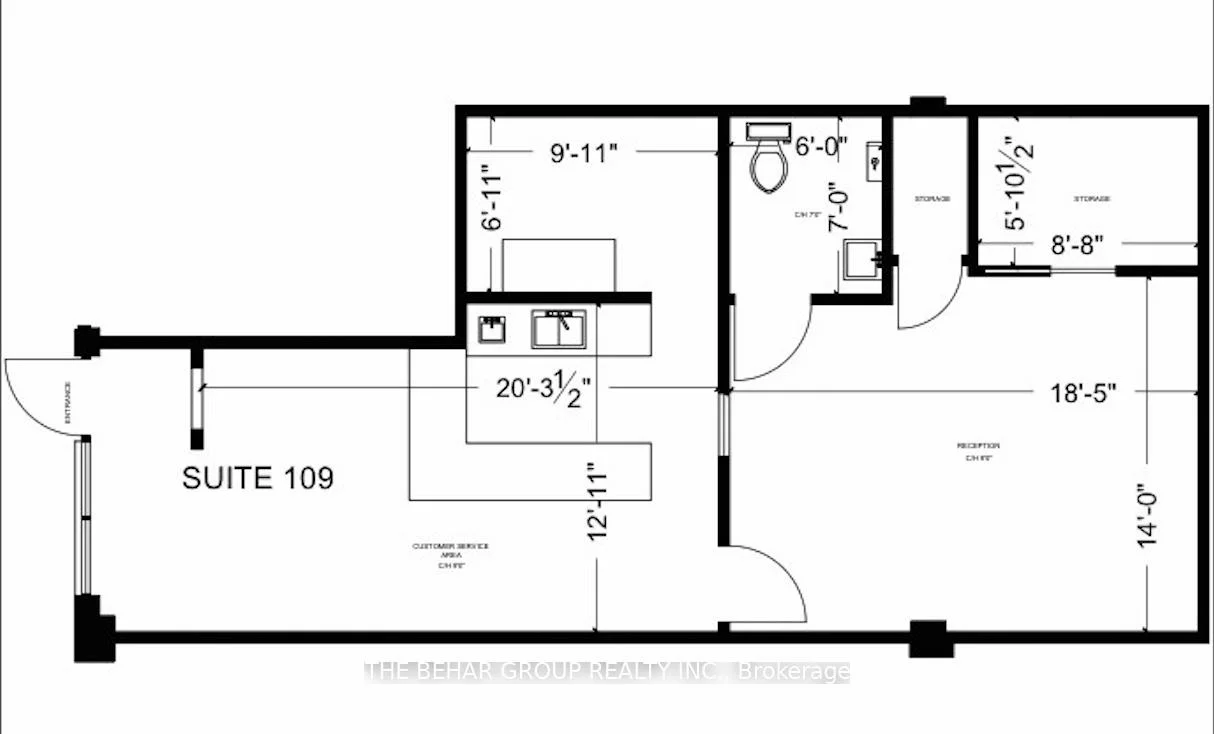
Former cafe available for lease situated in Richmond Hill's Oak Ridges Plaza with pylon signage available along Yonge Street. Ample parking on site. Other tenants include medical clinic, hair salon, educational services, Subway, retail and professional offices. Ideal for QSR, coffee shop, health services, or general retail and office use.
Cross Street: Yonge St & King Road
Key Facts
- Days on: 1 days
- Mls Status: New
- Bathrooms Total Integer: 1
- Lot Type: Lot
- Garage Type: Outside/Surface
- Heat Type: Electric Forced Air
- Cooling: Yes
- Building Area Total: 781 Square Feet
- Retail Area: 100 %
Location 13025, Yonge, Oak Ridges Lake Wilcox, Richmond Hill
Search by Neighbourhoods











