3139, Riverpath Common, 1040 - OA Rural Oakville, Oakville, Residential Condo & Other
- 3 beds |
- 4 baths |
- 2500-2749 SQFT

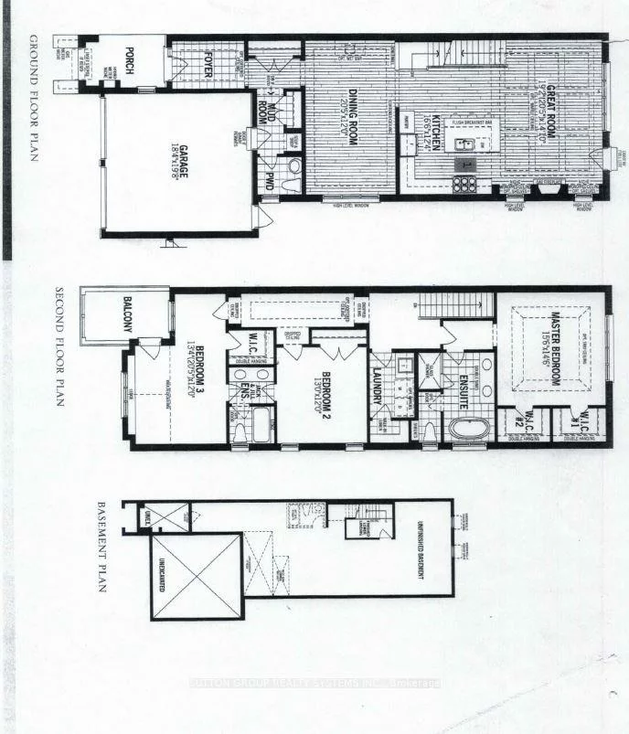
Description
Residential Condo & Other Condo Townhouse For Sale.
Stunning ravine executive townhome, build by mattamy & attached by garage only, over $50k in upgrades. Great floor plan with 9' ceilings on main and second floor, engineered hardwood flooring throughout decorate accent wall panels, coffered ceilings. Open concept design kitchen w/large center island, quartz countertops & stainless steel appliances. Great room has stone fireplace w/custom side cabinets & walkout to oversized terrace. Primary bedroom with his & hers walk in closet & 5pc en suite w/separate shower and toilet area, 2 bedrooms joined by Jack & Jill 4pc bath, Brand new finished basement w/gas fireplace custom kit, 3pc bath, w/o to yard & sound proof ceiling, huge storage area in basement. Garage w/ inside & backyard access.
Property Features: Greenbelt/Conservation
Laundry Features: Ensuite
Interior Features: Central Vacuum, Auto Garage Door Remote, Carpet Free, Water Softener
Cross Street: Carding Mill / 16 Mile Dr
Key Facts
- Days on: 1 days
- Mls Status: New
- Bedrooms Total: 3
- Bedrooms Above Grade: 3
- Bathrooms Total Integer: 4
- Locker: None
- Kitchens Total: 2
- Parking Total: 4
- Parking Spaces: 2
- Parking Features: Private
- Garage Type: Built-In
- Heat Source: Gas
- Heat Type: Forced Air
- Cooling: Central Air
- Living Area Range: 2500-2749 Square Feet
Location 3139, Riverpath Common, 1040 - OA Rural Oakville, Oakville
Search by Neighbourhoods

























