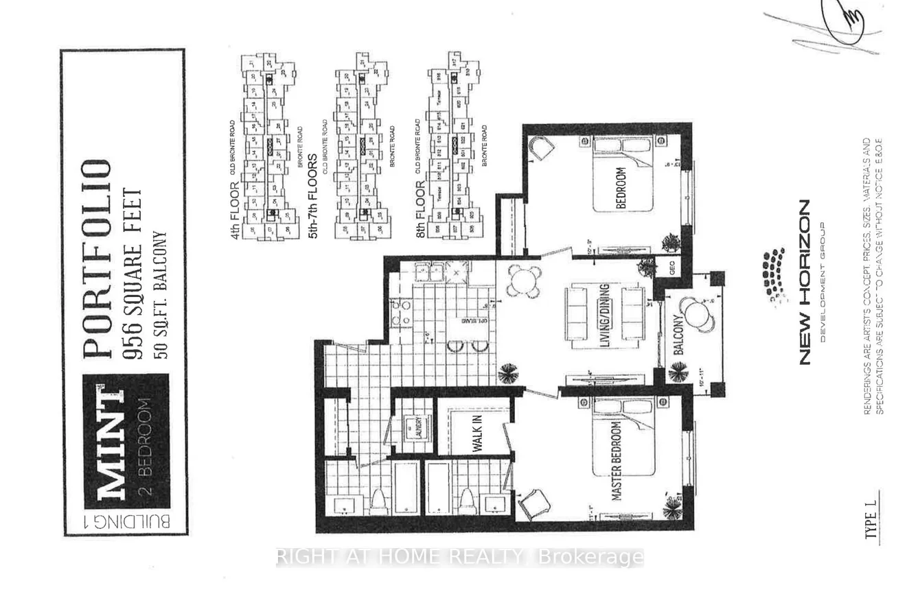
2486, Old Bronte, 1019 - WM Westmount, Oakville, Residential Condo & Other
- 2 beds |
- 2 baths |
- 900-999 SQFT

Description
Residential Condo & Other Condo Apartment For Sale.
This is a must see! Finally, a spacious, livable condo that actually feels like home. Welcome to this 956 sq. ft. (+50 sq. ft. balcony) stylish 2 bed, 2 bath corner unit at MINT Condos. Stylish open concept kitchen with dining area, and bright living room with walk-out to a west-facing covered balcony, overlooking the quiet interior courtyard - sunsets included. Work-from-home? You've got a smart office nook. Need space? Both bedrooms fit king-sized beds, PLUS have space for big dressers, a desk, or a play area! The primary retreat features a walk-in closet, cozy broadloom (2024), and en suite with an upgraded glass walk-in shower. Timeless granite countertops throughout! Separate laundry closet with storage space. Perks? Oh yes. Gym, party room, rooftop deck, on-site retail. One owned parking spot right next to the elevator (VIP status), plus a private locker lined with tarp for discretion. Energy efficient geothermal heating, water included, and no HVAC rentals. And the location? Minutes to Bronte GO, Bronte Park, Oakville Hospital, QEW, 407, and steps to parks, cafes, restaurants, clinics, and shops. Non-smoking building with lots of visitor parking.
Property Features: Greenbelt/Conservation, Public Transit, Place Of Worship, School
Laundry Features: Ensuite, Laundry Closet
Interior Features: Storage Area Lockers, Auto Garage Door Remote
Cross Street: Old Bronte & Dundas
Building Name: Mint Condos
Key Facts
- Days on: 4 days
- Mls Status: New
- Bedrooms Total: 2
- Bedrooms Above Grade: 2
- Bathrooms Total Integer: 2
- Locker: Owned
- Locker Level: Level A
- Locker Number: 1
- Locker Unit: Unit 242
- Kitchens Total: 1
- Parking Total: 1
- Garage Type: Underground
- Heat Source: Ground Source
- Heat Type: Heat Pump
- Cooling: Central Air
- Living Area Range: 900-999 Square Feet
Location 2486, Old Bronte, 1019 - WM Westmount, Oakville
Search by Neighbourhoods























