1230, Marlborough, 1003 - CP College Park, Oakville, Residential Condo & Other
- 1 beds |
- 1 baths |
- 800-899 SQFT

Description
Residential Condo & Other Condo Apartment For Sale.
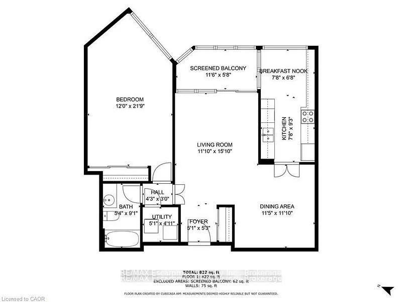
Incredible Value! This this sun-soaked, south-facing 1-bedroom, 1-bathroom condo offers almost 1000 sq ft of beautifully designed living space, bursting with natural light and charm. The spacious layout features a bright living room, formal dining area, and an eat-in kitchen, perfect for both everyday living and entertaining. One of the standout features is the bonus sunroom with sweeping views, ideal for your morning coffee, a cozy reading corner, or inspiring home office. You'll also love the generously sized bedroom, 4-piece bathroom, and the convenience of in-suite laundry. Close to Schools including Sheridan College, Parks, QEW Highway Access, Oakville Place, Oakville Go and more. A rare opportunity to enjoy comfort, space, and views, all in one exceptional home.
Property Features: Park, School, Greenbelt/Conservation, Other
Laundry Features: In-Suite Laundry
Interior Features: Carpet Free
Cross Street: Trafalgar Road
Key Facts
- Days on: 0 days
- Mls Status: Sold Conditional
- Bedrooms Total: 1
- Bedrooms Above Grade: 1
- Bathrooms Total Integer: 1
- Locker: Owned
- Locker Level: 11
- Kitchens Total: 1
- Parking Total: 1
- Parking Features: Inside Entry, Underground
- Garage Type: Underground
- Heat Source: Gas
- Heat Type: Forced Air
- Cooling: Central Air
- Living Area Range: 800-899 Square Feet
Location 1230, Marlborough, 1003 - CP College Park, Oakville
Search by Neighbourhoods



















