2486, Old Bronte, 1019 - WM Westmount, Oakville, Residential Condo & Other
MLS® Number W12744258
For Lease $ 2,025
- 1 beds |
- 1 baths |
- 500-599 SQFT

Description
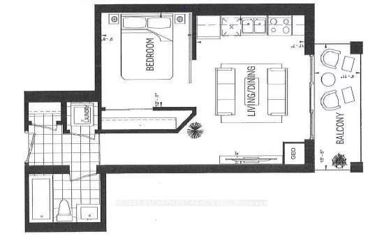
Residential Condo & Other Condo Apartment For Lease.
Beautiful open concept 1 bedroom condo located in prestigious Mint complex in Bronte Creek. Freshly installed quartz countertops, vinyl plank flooring and paint. Suite includes 1 underground parking/storage locker and in suite laundry. Amenities include gym, party room and rooftop. No smoking or pets permitted. Close to highways, shopping, hospital and Go Station. AAA credit only and Rental App, credit report and employment confirmation required. Hydro only utility paid by tenant.
Laundry Features: In-Suite Laundry
Interior Features: Intercom
Cross Street: Dundas Street to Old Bronte Road
Building Name: MINT
Key Facts
- Days on: 55 days
- Mls Status: Price Change
- Bedrooms Total: 1
- Bedrooms Above Grade: 1
- Bathrooms Total Integer: 1
- Locker: Owned
- Kitchens Total: 1
- Parking Total: 1
- Garage Type: Underground
- Heat Source: Other
- Heat Type: Other
- Cooling: Other
- Living Area Range: 500-599 Square Feet
Location 2486, Old Bronte, 1019 - WM Westmount, Oakville
Search by Neighbourhoods


















