405, Dundas, 1008 - GO Glenorchy, Oakville, Residential Condo & Other
MLS® Number W12711488
For Lease $ 2,090
- 2 beds |
- 2 baths |
- 600-699 SQFT

Description
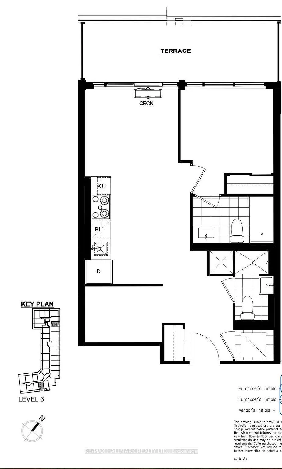
Residential Condo & Other Condo Apartment For Lease.
Stunning One Year Luxurious Boutique Condo in Oakville. One Bedroom + Den With 2 full Bath Open Concept with a Huge Terrace W/ LightDecor & lots of Quality European finished. Combined Living/Dining with walk-out to Bedroom with 4 Piece ensuite bath, Den can be used as 2nd Bedroom With a 3PC Baths. Close To All Amenities, Shopping, Community Centre, Top Ranked School Highways & Go Train! Don't Miss This Opportunity.418/2000
Property Features: Clear View, Golf, Hospital, Park, Public Transit, School
Laundry Features: Laundry Room, Ensuite
Interior Features: None
Cross Street: Dundas St/ Trailside Dr
Key Facts
- Days on: 1 days
- Mls Status: Price Change
- Bedrooms Total: 2
- Bedrooms Below Grade: 1
- Bedrooms Above Grade: 1
- Bathrooms Total Integer: 2
- Locker: None
- Kitchens Total: 1
- Parking Total: 1
- Parking Features: Underground
- Garage Type: Underground
- Heat Source: Gas
- Heat Type: Forced Air
- Cooling: Central Air
- Living Area Range: 600-699 Square Feet
Location 405, Dundas, 1008 - GO Glenorchy, Oakville
Search by Neighbourhoods

























