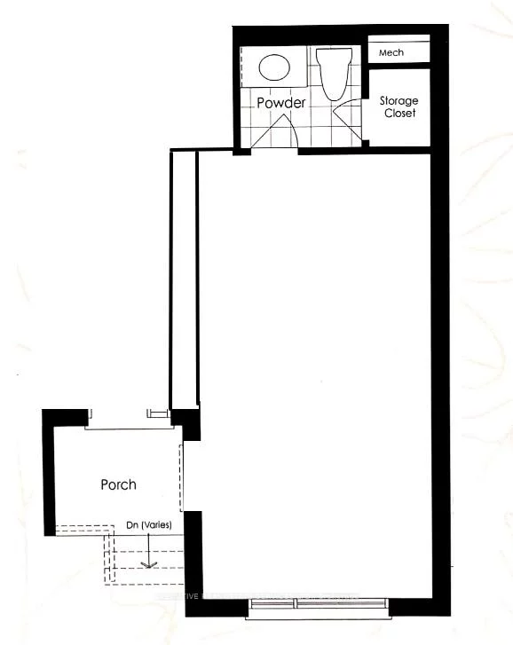
3281, Sixth, 1008 - GO Glenorchy, Oakville, Commercial
- 300 SQFT

Description
Commercial Commercial Retail For Lease.
Move-in ready with carpet and a finished washroom. Prime Retail/Office Space for Lease for small business. High Visibility Location Facing Sixth Line. Unit available for lease. Gross Rent, utilities included (TMI, Hydro, Gas, Water, Internet). Currently California shutters on Window, Carpeted Floor and Washroom is ready available with storage. This front-facing unit benefits from excellent exposure and heavy foot traffic, making it ideal for businesses looking to grow in Oakville most prestigious and rapidly expanding luxury communities. Perfect for a variety of uses, including: office, barber shop, accounting, travel agency, convenience store, and more. The neighborhood is thriving with new businesses, including dental offices, pharmacies, tutoring centers, and dry cleaning services opening soon. The unit features a modern design, prime location, and endless opportunities to capture the local customer base. Don't miss out on this high-visibility, high-traffic commercial space! Gross Rent, utilities included (TMI, Hydro, Gas, Water, Internet)
Cross Street: Sixth Line and Dundas St E
Key Facts
- Days on: 8 days
- Mls Status: New
- Lot Type: Unit
- Lot Width: 25.66
- Garage Type: Street
- Heat Type: Gas Forced Air Closed
- Cooling: Yes
- Building Area Total: 300 Square Feet
- Retail Area: 300 Sq Ft
- Lot Size Area: 2104 Square Feet
Location 3281, Sixth, 1008 - GO Glenorchy, Oakville
Search by Neighbourhoods
