244, Main, Central Newmarket, Newmarket, Commercial
- 8 baths |
- 9078 SQFT

Description
Commercial Commercial Retail For Sale.
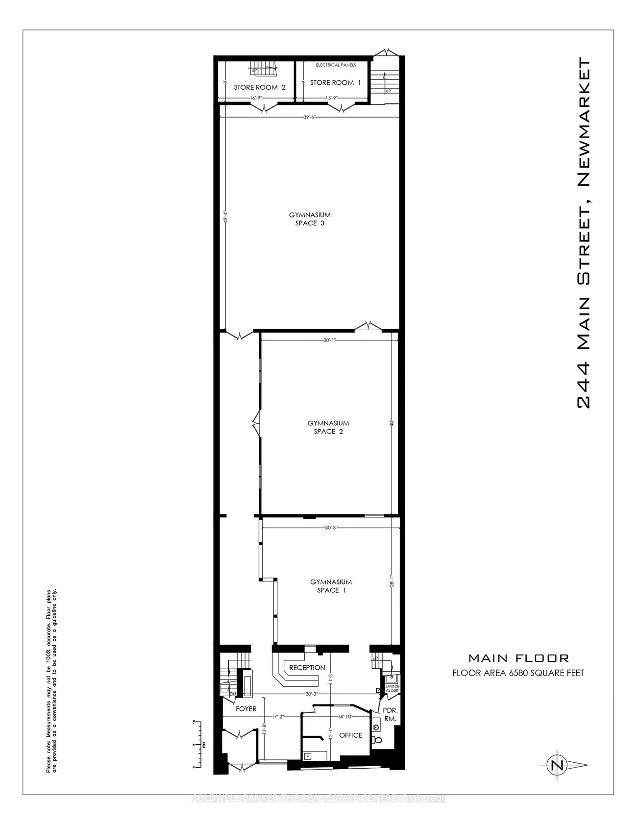
One of the most remarkable and attention-commanding properties in Newmarkets Award-Winning Historic Downtown, this iconic former theatre (once The Roxy and then The Odeon) now offers over 9,000 sq. ft. of gross floor area with full spanning roof beams, no columns and endless possibilities. Currently operating as a fitness and training centre, it awaits its next chapter as the next defining anchor for Main Street. Located just steps from The Postmark Hotel York Regions boutique urban hotel, this property enjoys immediate adjacency to Newmarkets most dynamic hospitality offerings. It's also just minutes from Fairy Lake and the Tom Taylor Trails, ideal for patrons seeking lifestyle and recreation. Nearby, the newest Bar Locale restaurant has joined an established roster of restaurants, patios, independent boutiques, and cultural venues lining Main Streets heritage stretch. Main Street Newmarket itself is built along an ancient First Nations trade route and celebrated today as a vibrant corridor of history, commerce, and cultural life. The downtown area is protected under a Heritage Conservation District, ensuring historical character is preserved while supporting new investment. Zoned UC-D1, the building supports a broad range of permitted uses: commercial school, office, place of worship, restaurant, dinner theatre, micro-brewery, private club, spa, retail and more. With soaring 20 foot ceilings (17.5 clear) with historical character, this property is architecturally stunning and functionally flexible. Whether your vision is a boutique performance venue, destination dining, creative co-working, or experiential retail, this is Newmarkets succession statement building. Don't miss your chance to own one of Main Streets most storied properties and reimagine what comes next for downtown Newmarket!
Community Features: Public Transit, Recreation/Community Centre
Cross Street: Bookended by York Region's First and Only Boutique Hotel, The Postmark Hotel and Local'e Newest Restaurant, Bar Locale
Business Name: 244 Main Street Formerly The Odeon Theatre and Former to that The Roxy Theatre
Key Facts
- Days on: 21 days
- Mls Status: New
- Bathrooms Total Integer: 8
- Lot Type: Lot
- Lot Width: 42.90
- Garage Type: Public
- Heat Type: Gas Forced Air Closed
- Cooling: Yes
- Building Area Total: 9078 Square Feet
- Retail Area: 100 %
Location 244, Main, Central Newmarket, Newmarket
Search by Neighbourhoods

























