185, Deerfield, Central Newmarket, Newmarket, Residential Condo & Other
- 2 beds |
- 2 baths |
- 600-699 SQFT

Description
Residential Condo & Other Condo Apartment For Lease.
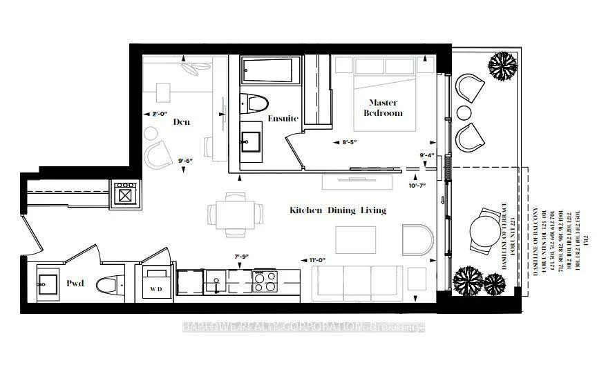
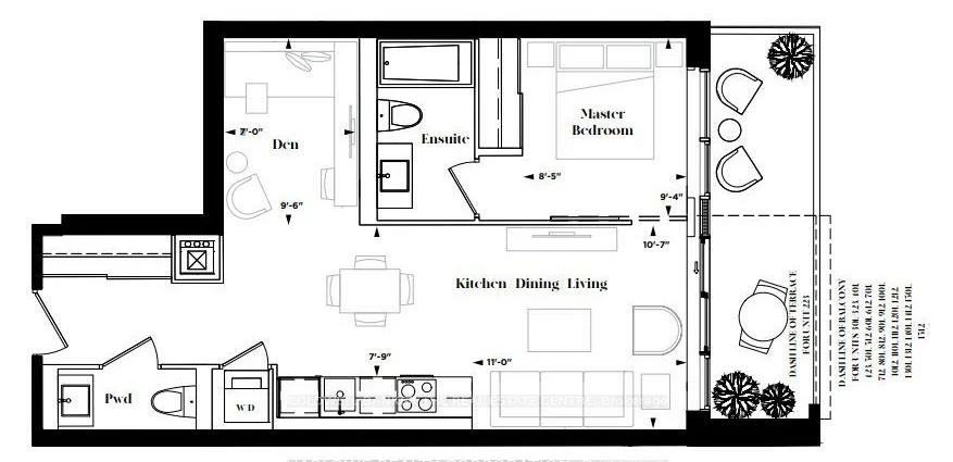
The Davis - Elevated Living in the Heart of Newmarket. Step into elegance through the welcoming and grand two-storey lobby entrance with sleek fireplace and cozy seating lounge. Perched on the 15th floor, this stunning condo offers breathtaking views from your open-air balcony. Located in Newmarket's premier LEED Silver certified condominium development, this eco-friendly residence blends modern luxury with sustainable living. Enjoy the convenience of being steps away from public transit, the GO Station, Southlake Hospital, Upper Canada Mall, and historic Main Street, surrounded by boutique shops, dining, and endless recreation options. Inside, the thoughtfully designed open-concept layout boasts luxury finishes, high ceilings,and abundant natural light, all complemented by a walkout balcony perfect for relaxing or entertaining. Exclusive building amenities include guest suites, party room, fitness centre,lounge, private dining area, roof-top terrace, entertainment room plus so much more. Experience contemporary living at its finest - The Davis awaits.
Property Features: Hospital, Place Of Worship, Public Transit, Library, Clear View
Laundry Features: Ensuite
Interior Features: None
Cross Street: Davis Dr. & Yonge St.
Building Name: The Davis
Key Facts
- Days on: 4 days
- Mls Status: Price Change
- Bedrooms Total: 2
- Bedrooms Below Grade: 1
- Bedrooms Above Grade: 1
- Bathrooms Total Integer: 2
- Locker: None
- Kitchens Total: 1
- Parking Total: 1
- Parking Spaces: 1
- Garage Type: Underground
- Heat Source: Electric
- Heat Type: Heat Pump
- Cooling: Central Air
- Living Area Range: 600-699 Square Feet
Location 185, Deerfield, Central Newmarket, Newmarket
Search by Neighbourhoods

























