615, Davis, Huron Heights-Leslie Valley, Newmarket, Commercial
MLS® Number N12437455
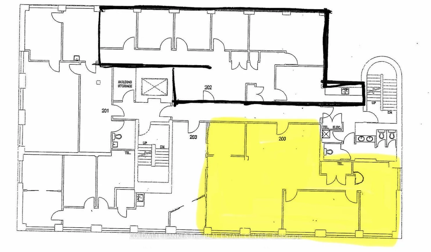
For Lease $ 10
- 1497 SQFT

Description
Commercial Office For Lease.
1497 Sq.Ft. Prime Professional Office Building With High Exposure Located Directly Across From Southlake Regional Health Centre And MedicalArts Building On Same Block. Would Suit Medical And Professionals Uses. Steps To Rapid Transit, Go Station. Well Maintained Building With Plenty Of Parking.
Community Features: Major Highway, Public Transit
Cross Street: Davis Drive/Leslie Street
Key Facts
- Days on: 152 days
- Mls Status: New
- Lot Type: Unit
- Lot Width: 1497.00
- Parking Spaces: 3
- Garage Type: Outside/Surface
- Heat Type: Gas Hot Water
- Cooling: Yes
- Building Area Total: 1497 Square Feet
- Lot Size Area: 1497 SquareFeet
Location 615, Davis, Huron Heights-Leslie Valley, Newmarket
Search by Neighbourhoods


