1690, Carrington, East Credit, Mississauga, Residential Freehold
- 5 beds |
- 5 baths |
- 2500-3000 SQFT

Description
Residential Freehold Detached For Sale.
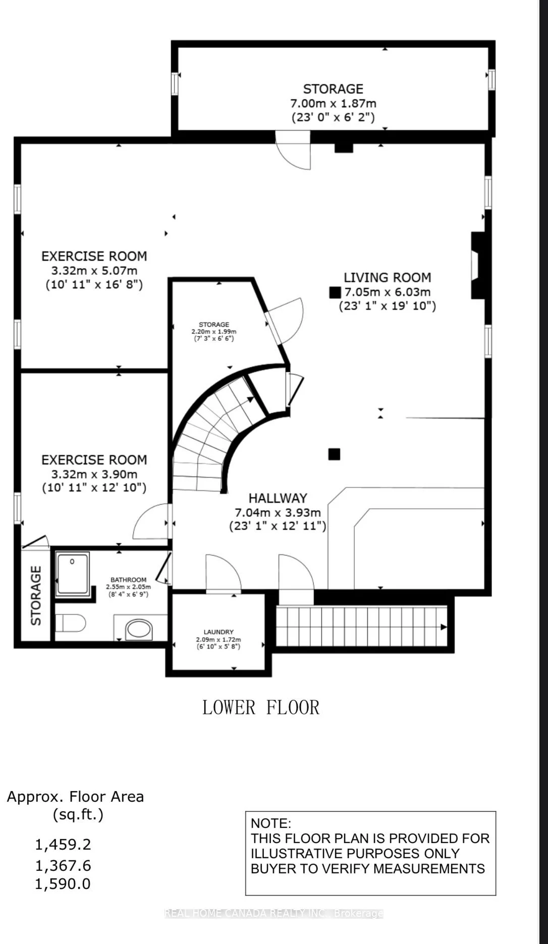
Gorgeous Home with Massive 58X125 Lot In Quiet Area. $200K Renovated in the house, Metal Roof 2024, Basement Exercise Room 2021, Chimney 2021; Gutter and Downspout 2021, Renovated in 2016: Two Ensuites Bathroom; One Semi Ensuite; Smooth Ceiling Throughout, Modern Stairs; Windows, Doors And Luxury Trims; Hardwood Floors; Lots of Pot Lights; Basement Floor; Pots lights under the eaves of the house, Etc.; Skylight, Modern Kitchen W/ Granite Countertop, S/S Appliances, Gas Stove, Eat-in Area W/Large Picture Window Facing Prof. Garden W/ 2 Mature Cherry Trees and one Pear Tree. Lrge Family Room W/Fireplace & W/O To The Deck; Finished Bsmt W/ Sep. Entr. with Rec Room, Wet Bar, Gas Fireplace, 3Pc Bathrm, Central Vacuum. Minutes To The Village Of Streetsville! Walk To Credit River And Trails! Close to Go Train Station!
Property Features: Fenced Yard, Hospital, Library, Park, Public Transit, Rec./Commun.Centre
Interior Features: Carpet Free, Auto Garage Door Remote, Built-In Oven, Central Vacuum
Cross Street: Creditview Rd / Carolyn Rd
Direction Faces: South
Key Facts
- Days on: 0 days
- Mls Status: Price Change
- Board Property Type: Free
- Bedrooms Total: 5
- Bedrooms Below Grade: 1
- Bedrooms Above Grade: 4
- Den / Family Room: Yes
- Bathrooms Total Integer: 5
- Lot Width: 58.75
- Kitchens Total: 1
- Parking Total: 6
- Parking Spaces: 4
- Parking Features: Private
- Garage Type: Detached
- Heat Source: Gas
- Heat Type: Forced Air
- Cooling: Central Air
- Living Area Range: 2500-3000 Square Feet
Location 1690, Carrington, East Credit, Mississauga
Search by Neighbourhoods

























