2980, Drew, Malton, Mississauga, Commercial
- 1241 SQFT

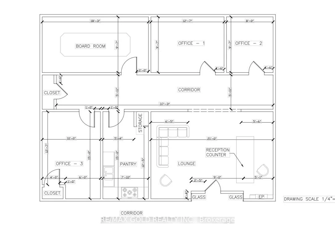
Description
Commercial Office For Sale.
GREAT AIRPORT RD EXPOSURE! Welcome to a great opportunity in the heart of Mississaugas top plaza district! This fully furnished 1241 sq. ft. office space is beautifully designed. Conveniently located just minutes from major highways and Toronto Pearson International Airport, it offers easy access for both clients and staff. The unit faces the main Airport Road, giving your business excellent visibility for signage and exposure. Its ideal for professionals such as lawyers, accountants, immigration consultants, real estate agents, and other service-based businesses. The building includes elevator access and plenty of parking for visitors and employees. Hydro and water are included in the maintenance fees for added convenience. Don't miss this chance to grow your business in one of the GTAs most active and sought-after plazas. Just minutes from the airport, with easy highway connections (401, 427, QEW), public transportation, restaurants, and many nearby amenities this location has it all. Schedule a viewing today to see what this exceptional space can offer your business! Some of the pictures are old and for reference purpose only . Note: some of the pictures are old and for reference purpose only.
Cross Street: Airport Road / Drew Road
Key Facts
- Days on: 4 days
- Mls Status: New
- Lot Type: Unit
- Garage Type: None
- Heat Type: Gas Forced Air Closed
- Cooling: Yes
- Building Area Total: 1241 Square Feet
Location 2980, Drew, Malton, Mississauga
Search by Neighbourhoods

























