1447, Merrow, Lorne Park, Mississauga, Residential Freehold
- 6 beds |
- 3 baths |
- 14090 SQFT

Description
Residential Freehold Detached For Lease.
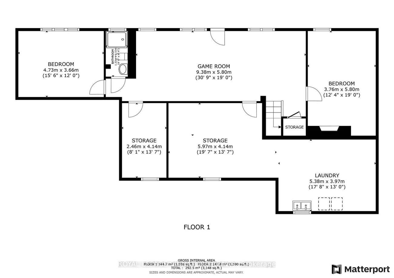
Classic 4 Bed Bungalow With A Walk Out Basement On An Estate Lot In Lorne Park For Rent. Popular White Oaks / Hillcrest / Lorne Park School District. Double Car Garage And 4 Car Driveway Parking. 1,700Sqft + 800Sqft Finished Walkout Basement. Floorplan and Matterport Virtual Tour Available. Ask about a possible landscaping package - leave the grass and leaves to someone else. Electric car charger option. Pets and furry family are welcome. Landlord will do thorough checks on any potential tenant applications.
Property Features: Public Transit, Wooded/Treed
Laundry Features: In Basement, Sink
Interior Features: Auto Garage Door Remote, Floor Drain
Cross Street: Truscott Dr and Lorne Park Rd
Direction Faces: East
Key Facts
- Days on: 0 days
- Mls Status: New
- Board Property Type: Free
- Bedrooms Total: 6
- Bedrooms Below Grade: 2
- Bedrooms Above Grade: 4
- Den / Family Room: Yes
- Bathrooms Total Integer: 3
- Lot Width: 101.00
- Kitchens Total: 1
- Parking Total: 6
- Parking Spaces: 4
- Parking Features: Private Double
- Garage Type: Attached
- Heat Source: Gas
- Heat Type: Forced Air
- Cooling: Central Air
- Lot Size Area: 14089 SquareFeet
- Living Area Range: 1500-2000 Square Feet
Location 1447, Merrow, Lorne Park, Mississauga
Search by Neighbourhoods
