1200, Aerowood, Northeast, Mississauga, Commercial
- 2 baths |
- 2983 SQFT

Description
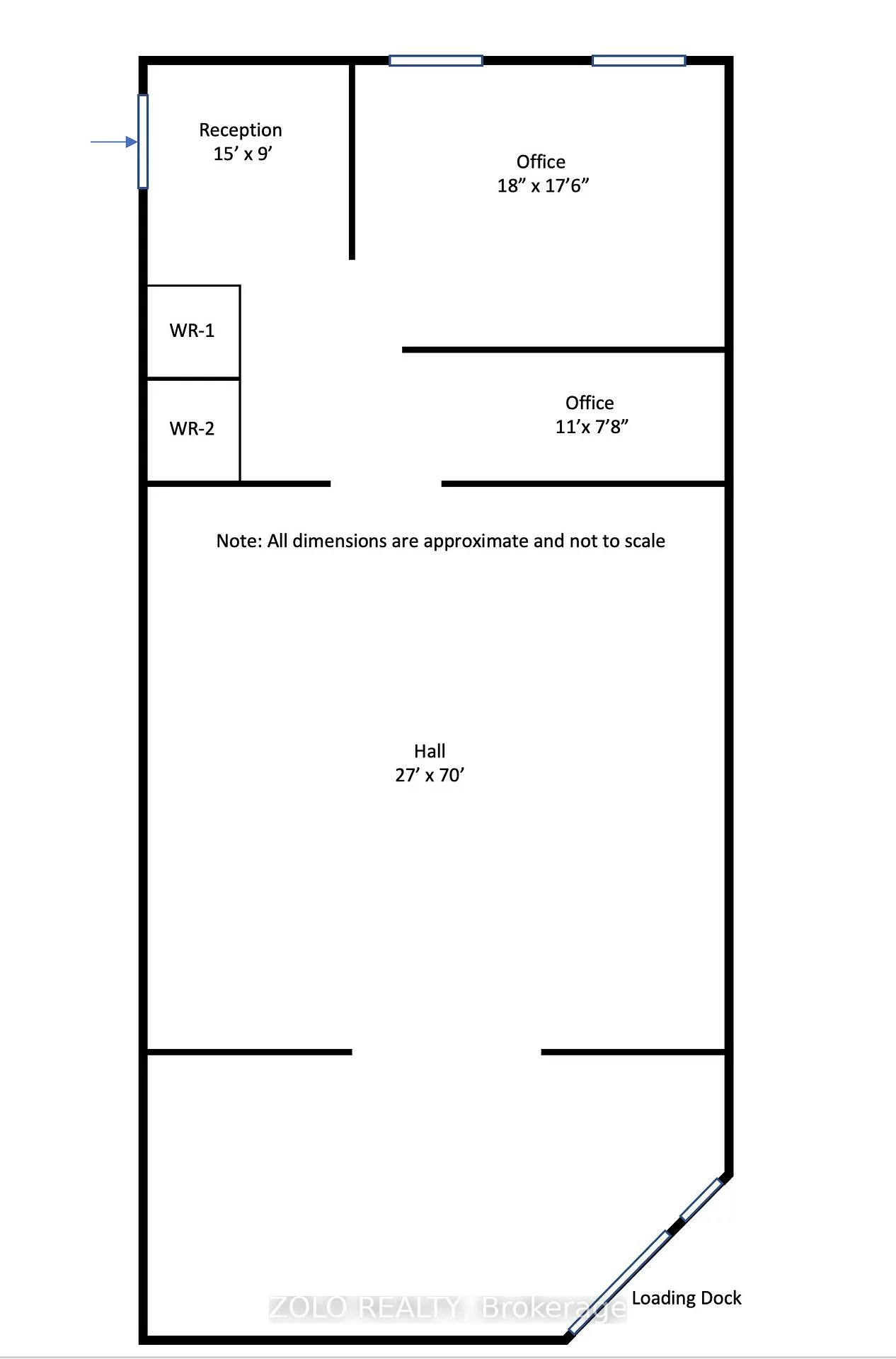
Commercial Industrial For Lease.
Premium flex industrial opportunity located within a premier business park in Northeast Mississauga. This professional condominium unit features a functional layout comprising well-appointed office space with 2 washrooms and a clean warehouse area equipped with a sought-after truck-level shipping door. Strategically situated with immediate access to Highways 401, 403, and 410, and just minutes from Pearson International Airport, the property offers exceptional connectivity for logistics and corporate operations. The complex is professionally maintained with high curb appeal and is surrounded by numerous local amenities and public transit options. This versatile space is ideally suited for established industrial users seeking a strategic, high-exposure location in a well-managed environment.
Community Features: Major Highway, Public Transit
Cross Street: Dixie Rd & Matheson Blvd E
Key Facts
- Days on: 1 days
- Mls Status: New
- Bathrooms Total Integer: 2
- Lot Type: Building
- Garage Type: Outside/Surface
- Heat Type: Gas Forced Air Open
- Cooling: Partial
- Building Area Total: 2983 Square Feet
Location 1200, Aerowood, Northeast, Mississauga
Search by Neighbourhoods


















