801, Dundas, Applewood, Mississauga, Commercial
MLS® Number W12515182
For Lease $ 10
- 2800 SQFT

Description
Commercial Commercial Retail For Lease.
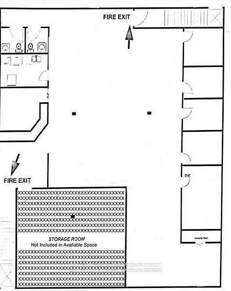
Basement Lower Level Retail Space For Lease!!! Join The Exciting Tenant Mix Of Tim Horton's, Restaurants, Medical, Dental, Pharma & Retail Stores. Located In the Dundas East Strip Of Mississauga. Many Uses Allowed. Perfect For: Gym, Dance/Ballet Studio, Yoga, Spa, Tutoring, Escape Room, Etc. **EXTRAS** (See Floorplan Attached) - Shell Space Includes 2 Washrooms Rough-In, Shower Rough-In, Built-Out Perimeter Offices, Boardroom, Kitchen Rough-In. Don't Miss This Opportunity To Locate Your Business In This Vibrant Plaza!!!
Community Features: Major Highway, Public Transit
Cross Street: Dundas St E/Cawthra Rd
Key Facts
- Days on: 120 days
- Mls Status: New
- Lot Type: Lot
- Garage Type: Plaza
- Heat Type: Gas Forced Air Closed
- Cooling: Yes
- Building Area Total: 2800 Square Feet
- Retail Area: 100 %
Location 801, Dundas, Applewood, Mississauga
Search by Neighbourhoods


