35, Sunrise, Milliken Mills East, Markham, Residential Condo & Other
- 2 beds |
- 2 baths |
- 1000-1199 SQFT

Description
Residential Condo & Other Condo Townhouse For Lease.
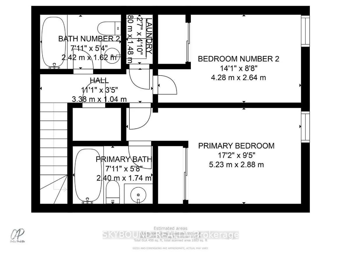
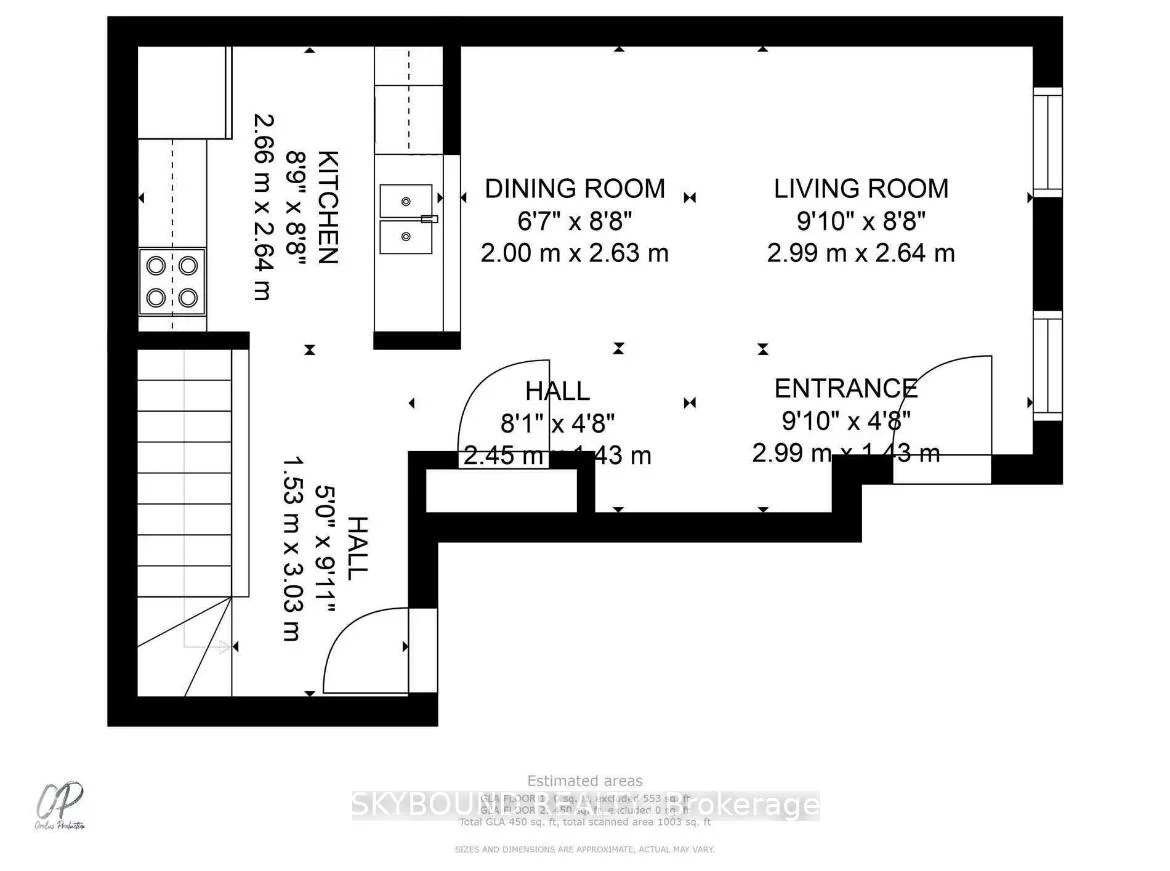
Location! Location! Location! Welcome to this well-maintained condo townhouse in the highly sought-after Old Kennedy Village-a family and pet-friendly community in one of Markham's most convenient neighbourhoods.This bright and functional home offers comfortable living with a practical layout, perfect for families or professionals. Move-in ready, clean, and well cared for-just bring your belongings and settle in. Enjoy unbeatable convenience with walking distance to Pacific Mall, TTC, GO Train, restaurants, and everyday essentials including No Frills supermarket. Surrounded by great schools, parks, and amenities, this location truly has it all. A fantastic opportunity to live in a vibrant, connected community. Please be advised that the two bedrooms are in the lower level. The move-in date potentially for July 1 but could be extended to August 1st. (Some photos are virtually staged for virtualization purposes)
Laundry Features: Ensuite
Interior Features: Carpet Free
Cross Street: Old Kennedy Rd and Steeles Ave
Key Facts
- Days on: 1 days
- Mls Status: New
- Bedrooms Total: 2
- Bedrooms Above Grade: 2
- Bathrooms Total Integer: 2
- Locker: None
- Kitchens Total: 1
- Parking Total: 1
- Garage Type: Underground
- Heat Source: Gas
- Heat Type: Forced Air
- Cooling: Central Air
- Living Area Range: 1000-1199 Square Feet
Location 35, Sunrise, Milliken Mills East, Markham
Search by Neighbourhoods
























