9751, Markham, Greensborough, Markham, Residential Condo & Other
- 2 beds |
- 2 baths |
- 600-699 SQFT

Description
Residential Condo & Other Condo Apartment For Lease.
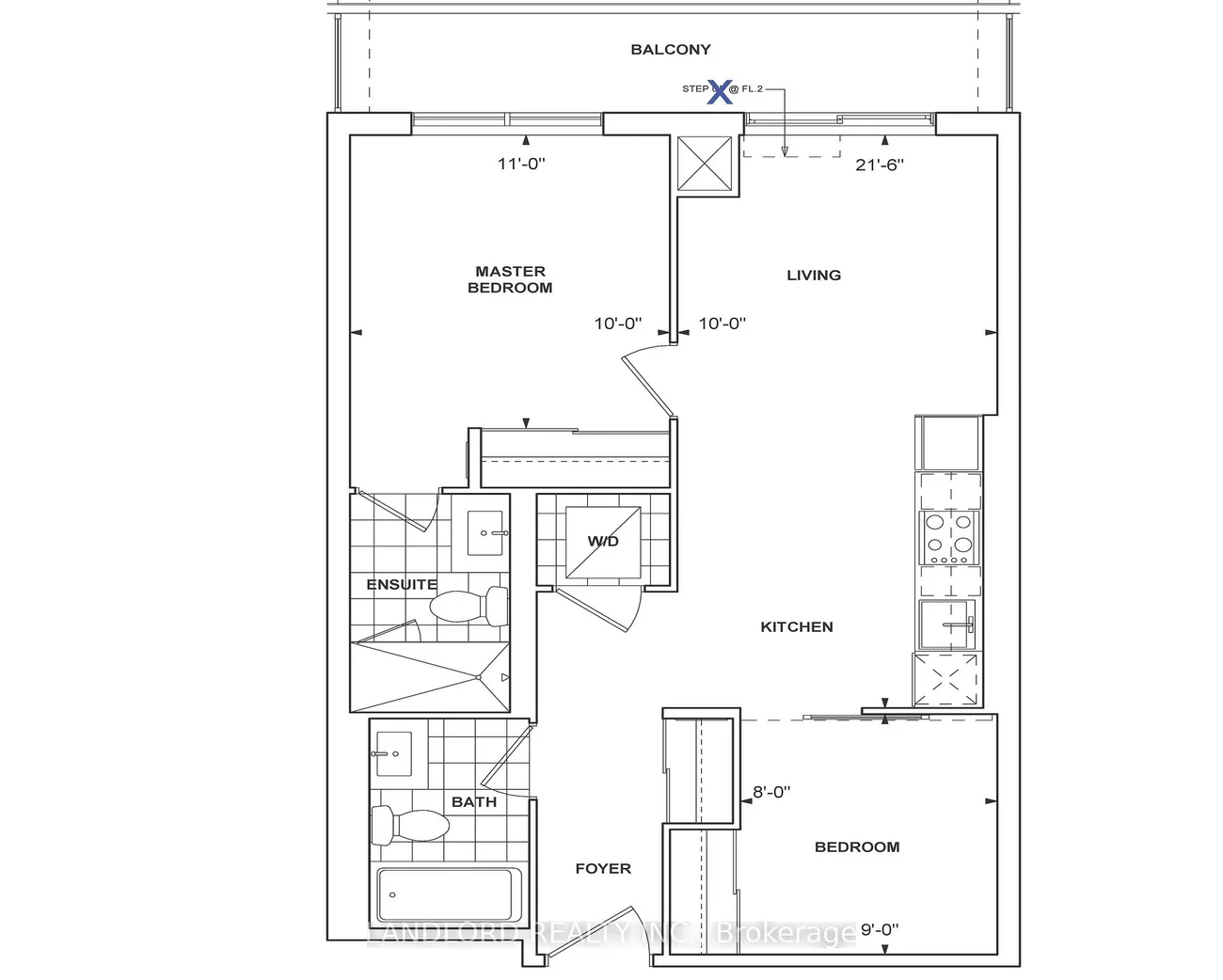
Vacant move in ready unfurnished suite in the all new Joy condo development, only a short walk from the nearest GO regional rail station to reach Union Station in under one hour! Parking included. The layout features a built-in closet and 4pc bathroom right at the entrance and walking in is the open plan kitchen/living area with a walk out to a south-facing balcony, the second bedroom with built in closet offers the flexibility of being an extension off the kitchen, and the primary south-exposed bedroom has a larger built in closet and en-suite 3pc bathroom. Features and finishes include: two-tone kitchen cabinets, stainless steel appliances, tile backsplash, stone countertops, vinyl plank flooring, suite-width balcony, tiled bathroom floors and stalls, front-loading laundry, and more! || Appliances: glass top range oven, bottom freezer fridge, built in dishwasher, built in microwave, washer, dryer. || Building Amenities: refer to listing images for all. || || Utilities paid by Tenant: Electricity, water, heating, cooling.
Laundry Features: Ensuite
Interior Features: Carpet Free
Cross Street: Markham Rd & Castlemore Ave
Key Facts
- Days on: 0 days
- Mls Status: Leased Conditional
- Bedrooms Total: 2
- Bedrooms Above Grade: 2
- Bathrooms Total Integer: 2
- Locker: None
- Locker Level: P
- Locker Unit: TBD
- Kitchens Total: 1
- Parking Total: 1
- Parking Spaces: 1
- Parking Features: Underground
- Garage Type: Underground
- Heat Source: Other
- Heat Type: Forced Air
- Cooling: Central Air
- Living Area Range: 600-699 Square Feet
Location 9751, Markham, Greensborough, Markham
Search by Neighbourhoods

















