7161, Yonge, Grandview, Markham, Residential Condo & Other
MLS® Number N12546350
For Lease $ 2,750
- 2 beds |
- 2 baths |
- 800-899 SQFT

Description
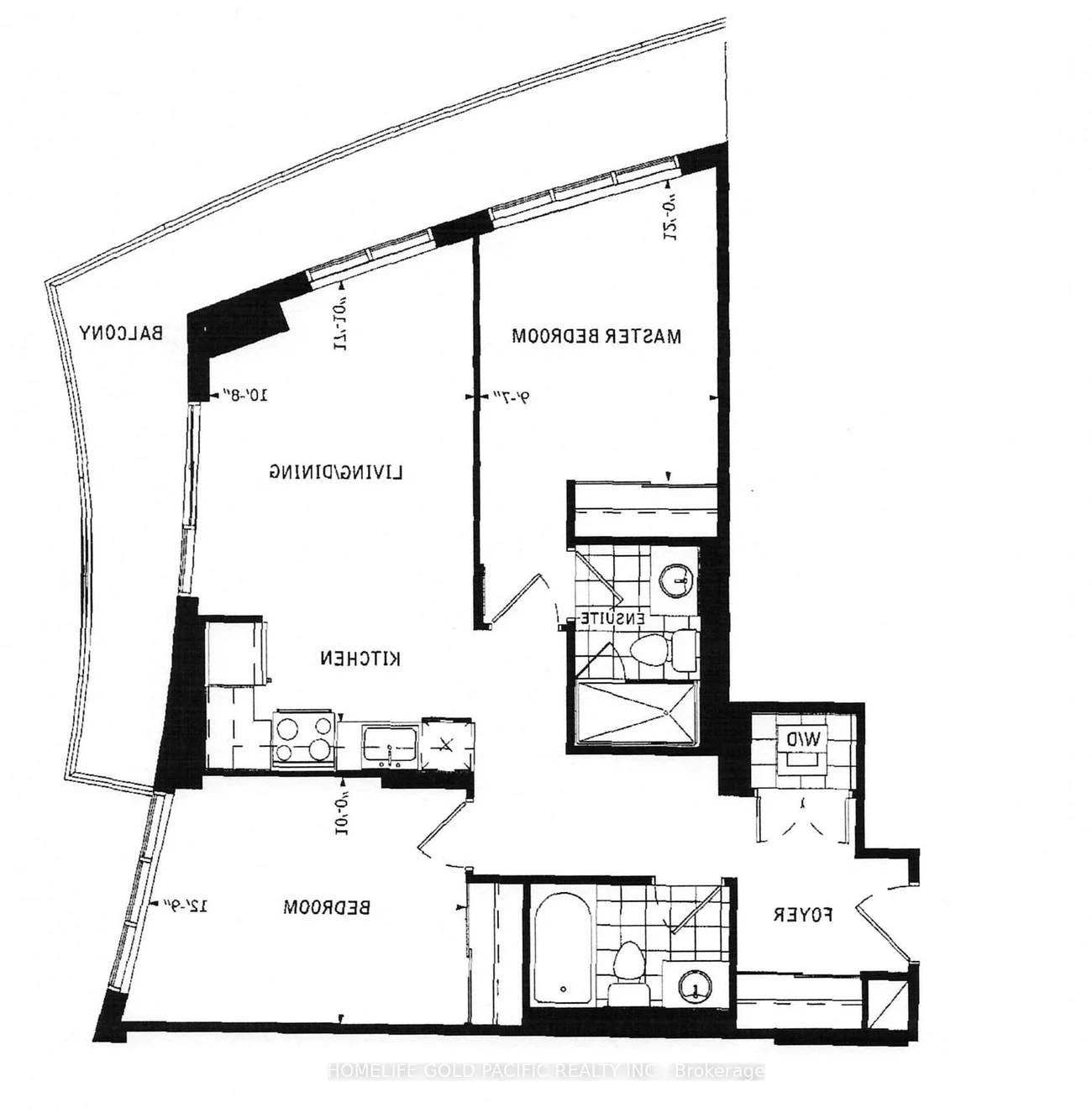
Residential Condo & Other Condo Apartment For Lease.
Luxury ' World On Yonge ' Condo Corner Suite. 2Br W/2 Bath, 9 Feet Ceiling, 835 Sft W/190 Sft Wrap Around Balcony. Fabulous City View, Modern Kit, European Style Cabinets, Classic Quality Laminate Flr. Steps To Amenities, Transit Close By, Indoor Mall & Supermarket At Same Site. Luxury Facilities, Ex Rm, Guest Suite, Visitor Parking, 24 Hrs Concierge. Tenant Pay Own Hydro. Aaa Tenant, Non Smoker , No Pets Per Owner. **EXTRAS** 1 underground parking space #339 at p2 included. Previous photos shown for ref only
Property Features: Public Transit
Laundry Features: Ensuite
Interior Features: Carpet Free
Cross Street: Yonge / Steeles Ave E
Key Facts
- Days on: 2 days
- Mls Status: Price Change
- Bedrooms Total: 2
- Bedrooms Above Grade: 2
- Bathrooms Total Integer: 2
- Locker: None
- Kitchens Total: 1
- Parking Total: 1
- Parking Spaces: 1
- Parking Features: Underground
- Garage Type: Underground
- Heat Source: Gas
- Heat Type: Forced Air
- Cooling: Central Air
- Living Area Range: 800-899 Square Feet
Location 7161, Yonge, Grandview, Markham
Search by Neighbourhoods






















