600, Alden, Milliken Mills East, Markham, Commercial
MLS® Number N12925508
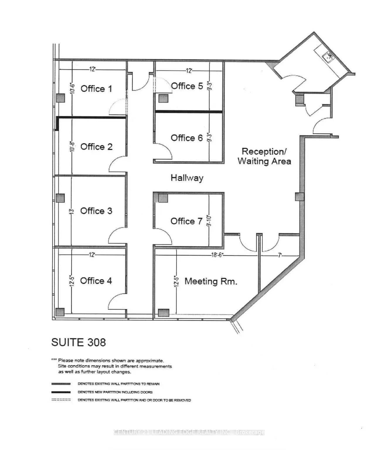
For Sub-Lease $ 4,950
- 2619 SQFT

Description
Commercial Office For Sub-Lease.
6 professional office room available
Cross Street: Highway 407 & Warden
Key Facts
- Days on: 2 days
- Mls Status: New
- Lot Type: Unit
- Garage Type: Underground
- Heat Type: Gas Forced Air Closed
- Cooling: Yes
- Building Area Total: 2619 Square Feet
Location 600, Alden, Milliken Mills East, Markham
Search by Neighbourhoods


