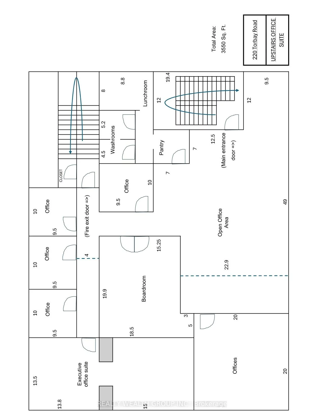
220, Torbay, Milliken Mills West, Markham, Commercial
MLS® Number N12779326
For Lease $ 14
- 3550 SQFT

Description
Commercial Office For Lease.
3550 Sqft, Recently Renovated, Executive Office Space On Prime Location. Easy Walk To T.T.C. Stop & Quick Access To Hwy. #404. Large Fenced Yard At Rear Of Building. High Power Supply. This Modern And Spacious Office Space Is Perfect For Businesses Seeking A Professional And Functional Workspace In A Prime Location. The Office Space Is Located On The Second Floor Of A Well-Maintained Commercial Building, Providing Easy Access For Employees And Clients Alike. With Ample Parking Available, Your Team And Clients Will Appreciate The Convenience Of Hassle-Free Parking.
Cross Street: Woodbine Avenue & Steeles Ave
Key Facts
- Days on: 6 days
- Mls Status: New
- Board Property Type: Com
- Lot Type: Lot
- Lot Width: 215.00
- Garage Type: Outside/Surface
- Heat Type: Gas Forced Air Open
- Cooling: Yes
- Building Area Total: 3550 Square Feet
Location 220, Torbay, Milliken Mills West, Markham
Search by Neighbourhoods

















