70, Valleywood, Buttonville, Markham, Commercial
MLS® Number N12457961
For Lease $ 24
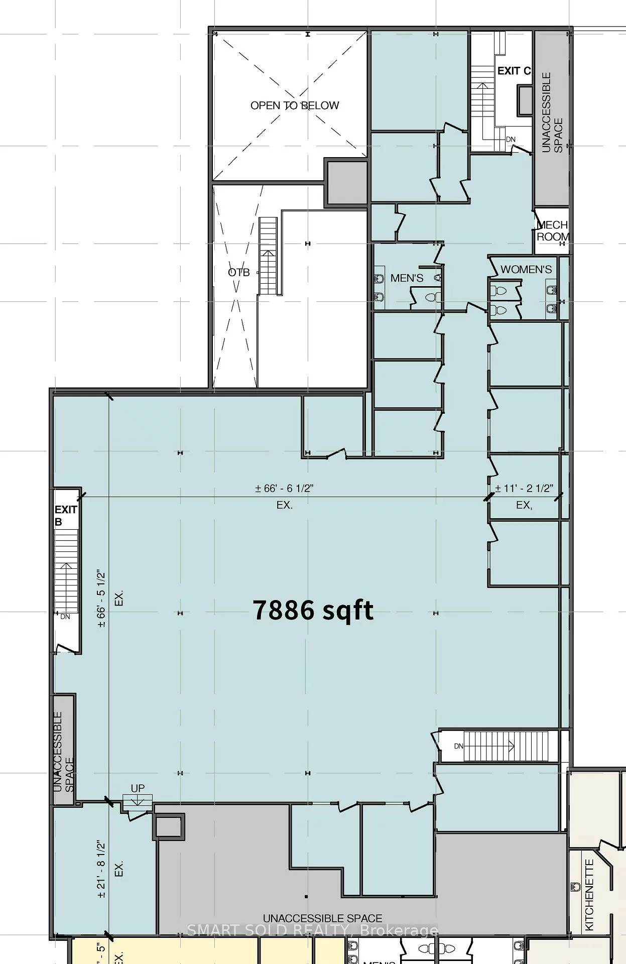
- 7886 SQFT

Description
Commercial Commercial Retail For Lease.
Prime Location In Prestigious Valleywood Business Park. Total Of 7,886sqft Fully Finished Space On 2nd Floor W/Sep Entrance. The Only Available Unit Left In This Highly Desired Location! Ideal For Variety Of Businesses Including Education, Beauty&Health Related, Pilates, Yoga, Etc. Newly Finished. Minutes From Highways 404, 401 And 407. Close To T&T, Downtown Markham. Surrounded By Large Communities With Endless Potential Clients.
Community Features: Major Highway, Public Transit
Cross Street: 404 / Highway 7
Key Facts
- Days on: 1 days
- Mls Status: New
- Board Property Type: Com
- Lot Type: Lot
- Lot Width: 2.60
- Parking Spaces: 127
- Garage Type: Outside/Surface
- Heat Type: Gas Forced Air Open
- Cooling: Yes
- Building Area Total: 7886 Square Feet
- Retail Area: 80 %
Location 70, Valleywood, Buttonville, Markham
Search by Neighbourhoods
