20, Cachet Woods, Cachet, Markham, Commercial
- 7 baths |
- 11038 SQFT

Description
Commercial Office For Lease.
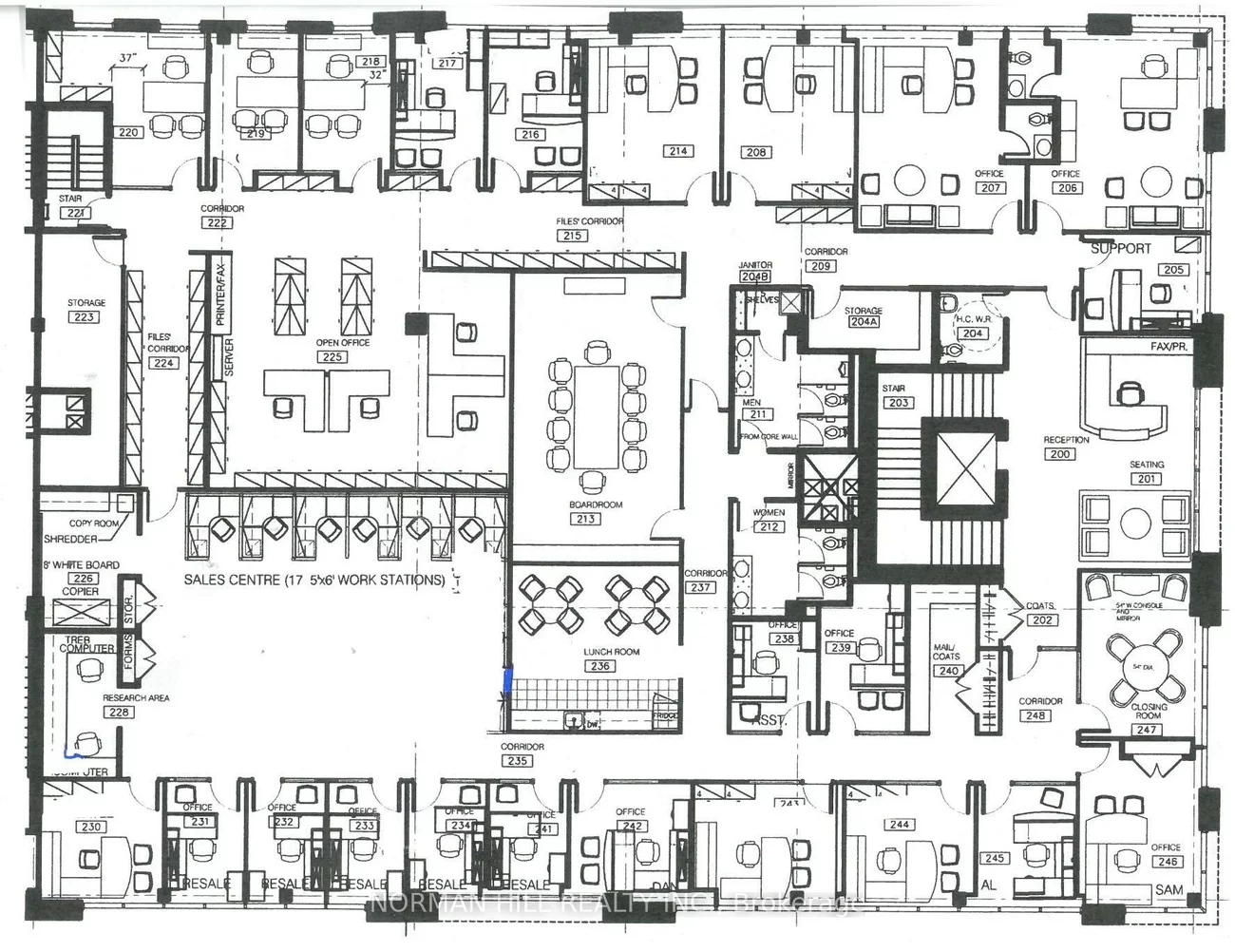
Professional Office Space for Lease. This 2nd floor office space offers a total of 11,038 square feet of versatile space, perfect for companies seeking a professional and collaborative work environment. Key Features include a mix of private, enclosed offices for focused work, a spacious, well-lit boardroom ideal for meetings and presentations. Expansive open spaces, with 10' ceilings, for flexible workstations, team collaboration, and a dynamic office culture. Bright Windows provide ample natural light throughout the space, creating a bright and inviting atmosphere. This office space is designed for companies looking to enhance productivity while maintaining a polished and professional image. Private elevator and stair access to the 2nd floor unit. 22 Closed Offices (including 2 executive size offices, 2 jr executive offices), 2 open work spaces, 1 meeting room & 1 boardroom, private full size kitchen with seating area. 3 Private washrooms, 2 shared (2 stall & 2 stall + urinal) washrooms. 3 storage rooms. TMI $7.75
Community Features: Major Highway, Public Transit
Cross Street: Hwy 404 and 16th Avenue
Key Facts
- Days on: 4 days
- Mls Status: Leased Conditional
- Bathrooms Total Integer: 7
- Lot Type: Lot
- Parking Spaces: 35
- Garage Type: Outside/Surface
- Heat Type: Gas Forced Air Open
- Cooling: Yes
- Building Area Total: 11038 Square Feet
Location 20, Cachet Woods, Cachet, Markham
Search by Neighbourhoods

























