12840, Weston, Rural King, King, Residential Freehold

Description
Residential Freehold Vacant Land For Sale.
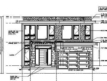
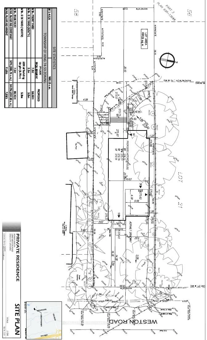
BUILD YOUR DREAM HOME TODAY Stop dreaming and start building on this incredible, extra-deep premium lot. Spanning an impressive 48.93 x 224.62 feet, this property has been professionally cleared of trees and is officially "shovel-ready." Skip the months of waiting at City Hall-this lot is permit-ready with drawings in hand for a magnificent 4,153 sq ft luxury residence. The seller is covering the cost of the building permit and will transfer it directly to the buyer upon a successful offer. While the current plans offer a stunning layout, they remain fully modifiable, giving you the rare freedom to customize the interior flow to match your exact lifestyle. Flexible terms are available. Don't wait for the market to move-secure the land and the permit in one seamless transaction!
Cross Street: King Rd and Weston Road
Direction Faces: West
Key Facts
- Days on: 1 days
- Mls Status: New
- Lot Width: 48.93
Location 12840, Weston, Rural King, King
Search by Neighbourhoods




