390, Main, Schomberg, King, Residential Freehold
- 7 beds |
- 5 baths |
- 3500-5000 SQFT

Description
Residential Freehold Detached For Sale.
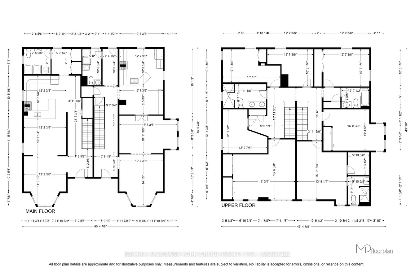
MUST BE SEEN! Wonderfully decorated and updated throughout, just the right touch of modern and charming. Great opportunity for extended family or investment, live in one half and rent the other half. TWO...main floor Kitchens, living rooms, dining rooms, 2 Main floor laundry rooms, and seven bedrooms upstairs! Majestic over one-acre manicured lot with large Eating and Entertaining area/Patio and gardens, lot backs onto protected land No homes behind! Walk to quaint shops, restaurants/patios on Historic Main Street. The home is currently being used as a single-family dwelling; however, it can easily be used as two separate homes with two front and back entrances. Many Possibilities.
Property Features: Park, Place Of Worship, Rec./Commun.Centre, Ravine, Rolling, Clear View
Interior Features: Central Vacuum, Carpet Free, In-Law Capability, In-Law Suite, Auto Garage Door Remote, Accessory Apartment
Cross Street: Hwy 27/Hwy 9
Direction Faces: East
Key Facts
- Days on: 35 days
- Mls Status: New
- Bedrooms Total: 7
- Bedrooms Above Grade: 7
- Bathrooms Total Integer: 5
- Lot Width: 93.73
- Kitchens Total: 2
- Parking Total: 18
- Parking Spaces: 14
- Parking Features: Private
- Garage Type: Detached
- Heat Source: Other
- Heat Type: Radiant
- Cooling: Window Unit(s)
- Living Area Range: 3500-5000 Square Feet
Location 390, Main, Schomberg, King
Search by Neighbourhoods

























