390, Main, Schomberg, King, Residential Freehold
- 7 beds |
- 5 baths |
- 3500-5000 SQFT

Description
Residential Freehold Detached For Sale.
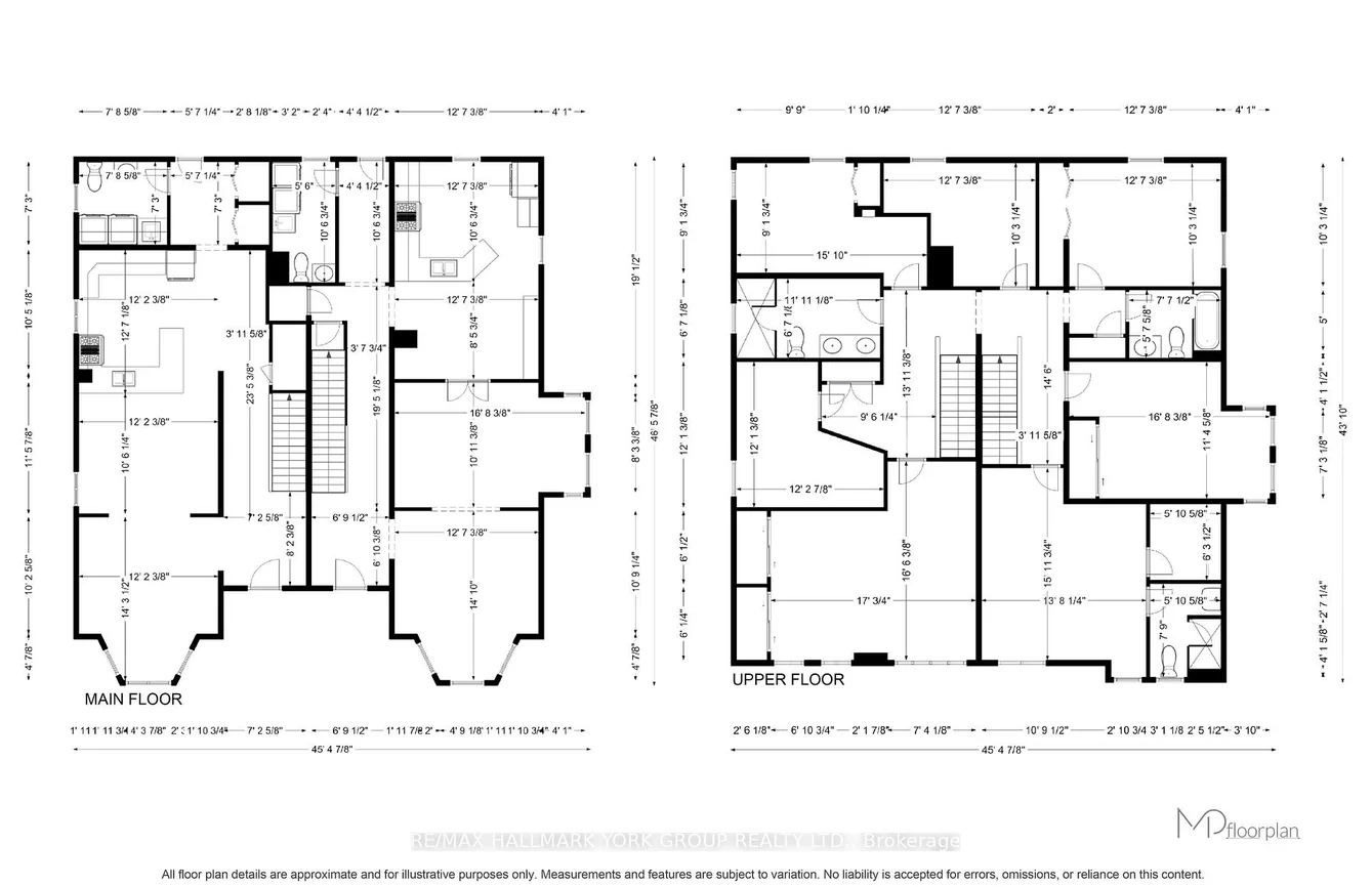
Whether you're dreaming of extra rental income, space for family, or a home with character, this property delivers. Enjoy the convenience of main street living, the beauty of mature grounds, and the practicality of a 4-car garage-perfect for car lovers, contractors, or hobbyists. A special property with endless potential.Discover the perfect blend of character, income potential, and convenience in this beautifully maintained century home, legally converted into a duplex. Set on over 1 acre in a highly visible main street location, this property is ideal for investors, multigenerational living, or buyers seeking added income.This charming home features two self-contained units, each with its own kitchen, living spaces, and private entrances. Original architectural details are complemented by tasteful updates throughout.Outside, enjoy a sprawling property with endless possibilities-gardens, recreational space, future expansion, (buyer to verify zoning). A rare 4-car detached garage provides abundant storage, workshop space, or hobby use.Don't miss this unique opportunity to own a landmark property with exceptional versatility and long-term value.
Property Features: Park, Place Of Worship, Rec./Commun.Centre, Ravine, Rolling, Clear View
Interior Features: Central Vacuum, Carpet Free, In-Law Capability, In-Law Suite, Auto Garage Door Remote, Accessory Apartment
Cross Street: Hwy 27/Hwy 9
Direction Faces: East
Key Facts
- Days on: 8 days
- Mls Status: New
- Bedrooms Total: 7
- Bedrooms Above Grade: 7
- Bathrooms Total Integer: 5
- Lot Width: 93.73
- Kitchens Total: 2
- Parking Total: 18
- Parking Spaces: 14
- Parking Features: Private
- Garage Type: Detached
- Heat Source: Other
- Heat Type: Radiant
- Cooling: Window Unit(s)
- Living Area Range: 3500-5000 Square Feet
Location 390, Main, Schomberg, King
Search by Neighbourhoods

























