778, Pine Grove, Rural Innisfil, Innisfil, Residential Freehold

Description
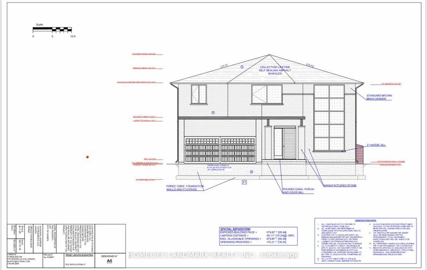
Residential Freehold Vacant Land For Sale.
Prime Location Near Lake Simcoe & Prestigious Friday Harbour! Fantastic Opportunity To Build Your Dream Home/Cottage In Simcoe County. Discover this exceptional 60' x 240' country lot nestled on a quiet, family-friendly street surrounded by mature trees, offering the perfect blend of privacy, tranquility, and natural beauty. Steps Away From Lake Simcoe! Ready To Build, Builder's Plan -Ready!!!
Cross Street: Pinegrove And 25th Sideroad
Direction Faces: North
Key Facts
- Days on: 1 days
- Mls Status: New
- Lot Width: 60.00
- Heat Source: Electric
- Heat Type: Baseboard
- Cooling: None
Location 778, Pine Grove, Rural Innisfil, Innisfil
Search by Neighbourhoods







