1052, Spruce, Rural Innisfil, Innisfil, Residential Freehold

Description
Residential Freehold Vacant Land For Sale.
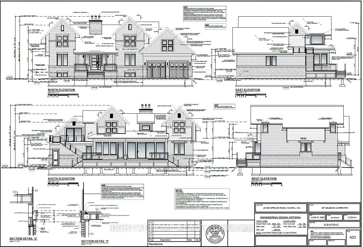
Prime Building Lot Near Lake Simcoe! Welcome to 1052 Spruce Rd, a rare opportunity in a sought-after Innisfil neighbourhood, just a short walk to Lake Simcoe. This 100 ft x 136 ft lot offers endless potential - build one expansive dream home or explore the option to sever into two 50 ft frontage lots (buyer to verify with Town of Innisfil). Conservation Authority approval already in place for a new two-storey 3,724 sq. ft. home, saving valuable time for your build. Enjoy a peaceful, country-style setting close to schools, shops, and beaches. Perfect for custom home builders, investors, or families looking to create their ideal lakeside residence. Services: Municipal sewer at lot line, natural gas at road, artisan well, and recycled asphalt driveway. Don't miss this exceptional opportunity near Lake Simcoe!
Property Features: Beach, Park, Marina, Public Transit, School Bus Route
Cross Street: Spruce/Temple
Direction Faces: North
Key Facts
- Days on: 1 days
- Mls Status: New
- Lot Width: 100.00
Location 1052, Spruce, Rural Innisfil, Innisfil
Search by Neighbourhoods











